GB/T 17428-2009 通风管道耐火试验方法
- 发表时间:2022-12-11
- 来源:共立欧宝网页版登录入口
- 人气:
警示:
组织和参加本项试验的所有人员应注意,耐火试验可能有危险。在耐火试验过程中有可能产生有毒和/或有害的烟尘和烟气。在试件安装、试验过程和试验后残余物的清理过程中,也可能出现机械危害和操作危险。
在耐火试验后,拆除管道前,管道应完全冷却,达到可燃残余物无复燃的可能。
应对所有潜在的危险及对健康的危害进行评估,并做出安全预告。应颁布操作规程,对相关人员进行必要的培训,确保实验室工作人员按操作规程操作。
1 范围
本标准规定了水平通风管道在标准火条件下的耐火性能试验方法,用来检验通风管道承受外部火(管道A)和内部火(管道B)作用时的耐火性能。垂直管道的耐火试验可参照本标准执行。
本标准不适用于:
a) 耐火性能取决于吊顶耐火性能的管道;
b)带检修门的管道,除非将检修门纳入到管道中一起试验;
c) 两面或三面的管道;
d) 排烟管道;
e)与墙或楼板连接的吊挂固定件。
2 规范性引用文件
下列文件中的条款通过本标准的引用而成为本标准的条款。凡是注日期的引用文件,其随后所有的修改单(不包括勘误的内容)或修订版均不适用于本标准,然而,鼓励根据本标准达成协议的各方研究是否可使用这些文件的最新版本。凡是不注日期的引用文件,其最新版本适用于本标准。
GB/T 5907 欧宝网页版登录入口基本术语 第一部分
GB/T 9978.1 建筑构件耐火试验方法 第1部分:通用要求(GB/T 9978.1-2008,ISO 834-1:1999,MOD)
3 术语和定义
GB/T 5907、GB/T 9978.1确立的以及下列术语和定义适用于本标准。
3.1
吊挂固定件 suspending element
用来将管道吊挂在梁板上或固定到墙体上的部件。
3.2
支承结构 supporting element
试验中管道穿越的墙体或隔墙。
4 试验装置
4.1 总则
除了GB/T 9978.1规定的试验装置外,本试验还需要以下装置。
4.2 试验炉
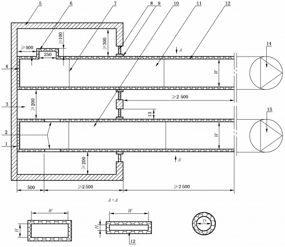
满足GB/T 9978.1规定的标准升温和压力条件,并适合水平方向安装管道,见图1。

1——炉内约束的位置;
2——总面积为管道截面50%的开口;
3——炉膛;
4——管道密封端;
5——炉墙;
6——T型支管密封端;
7——管道接缝;
8——支承结构;
9——和实际相同的防火封堵;
10——管道B;
11——管道A;
12——通风管道:
13——最小为200mm的支承结构;
14——风机A;
15——风机B;
W——管道宽度;
H——管道高度;
D——管道直径。
注:此图表示的是两个管道同时试验的情况,允许在试验炉上每次对一根管道进行试验。
图1 管道的试验安装示意图
4.3 风机A
在试验开始和整个试验过程中能使管道A内保持(300±15)Pa的压差,可以直接或通过适当长度的管道与试件相连接。压力测量仪表的准确度为士3Pa。
4.4 风机B
试验开始前,在环境温度下,使管道B内保持(3±0.45)m/s的空气流速。可以直接或通过适当长度的管道与试件相连接。风机应设置一个旁通风口,可以在4.5中描述的截止阀关闭前打开。流速测量仪表的准确度为±5%。
4.5 截止阀
截止阀应安装在风机B和试件之间。在风机B处于“停止”状态下,通过隔断管道B内的空气流动来评价管道B的耐火完整性。
5 试验条件
试验炉内加热条件和压力条件应满足GB/T 9978.1的规定。
试验过程中,管道承受的试验条件应满足10.2的规定。
6 试件
6.1 尺寸
6.1.1 总则
除了表1和表2给出的尺寸,其他尺寸的管道在应用时应符合14.2的规定。
6.1.2 长度
试件在炉内和炉外的最小长度见表1。
表1 试件的最小长度
最小长度/m | |
炉内 | 炉外 |
3.0 | 2.5 |
6.1.3 截面
应使用表2给出的标准尺寸的管道进行试验,除非实际使用的截面尺寸小于此尺寸。
表2 试件的截面尺寸
管 道 | 矩 形 | 圆 形 | |
宽度/mm | 高度/mm | 直径/mm | |
A | 1000±10 | 500±10 | 800±10 |
B | 1000±10 | 250±10 | 630±10 |
6.2 数量
管道A和管道B各需一个试件进行试验。
6.3 设计
6.3.1 总则
应对整个有代表性的管道总成进行试验。炉内和炉外管道的边界条件和固定或支承方法也应反映实际使用情况。
以上为标准部分内容,如需看标准全文,请到相关授权网站购买标准正版。
- 2023-08-22欧宝网页版登录入口维修保养记录
- 2023-08-22欧宝网页版登录入口设施维修维护
- 2023-08-19欧宝网页版登录入口水池维修
- 2023-08-19欧宝网页版登录入口水炮维修
- 2023-08-19欧宝网页版登录入口线路维修
- 2023-08-19欧宝网页版登录入口维保服务系统
- 2023-08-19欧宝网页版登录入口主机维修维保大全
- 2023-08-19欧宝网页版登录入口维保作用
- 2023-08-18欧宝网页版登录入口维保工作联系单
- 2023-08-18欧宝网页版登录入口维保每年都要做吗
- 2023-08-18 欧宝网页版登录入口维保技术服务
- 2023-08-18欧宝网页版登录入口主板维修
- 2023-08-18欧宝网页版登录入口维保软件
- 2023-08-18欧宝网页版登录入口维保规章制度
- 2023-08-17欧宝网页版登录入口检测和维保
- 2023-08-17欧宝网页版登录入口维保检查
-
IG541混合气体灭火系统
IG541混合气体灭火系统:IG-541灭火系统采用的IG-541混合气体灭火剂是由大气层中的氮气(N2)、氩气(Ar)和二氧化碳(CO2)三种气体分别以52%、40%、8%的比例混合而成的一种灭火剂 -
二氧化碳气体灭火系统
二氧化碳气体灭火系统:二氧化碳气体灭火系统由瓶架、灭火剂瓶组、泄漏检测装置、容器阀、金属软管、单向阀(灭火剂管)、集流管、安全泄漏装置、选择阀、信号反馈装置、灭火剂输送管、喷嘴、驱动气体瓶组、电磁驱动 -
七氟丙烷灭火系统
七氟丙烷(HFC—227ea)灭火系统是一种高效能的灭火设备,其灭火剂HFC—ea是一种无色、无味、低毒性、绝缘性好、无二次污染的气体,对大气臭氧层的耗损潜能值(ODP)为零,是卤代烷1211、130 -
手提式干粉灭火器
手提式干粉灭火器适灭火时,可手提或肩扛灭火器快速奔赴火场,在距燃烧处5米左右,放下灭火器。如在室外,应选择在上风方向喷射。使用的干粉灭火器若是外挂式储压式的,操作者应一手紧握喷枪、另一手提起储气瓶上的


