GB/T 27904-2011 火焰引燃家具和组件的燃烧性能试验方法
- 发表时间:2022-11-23
- 来源:共立欧宝网页版登录入口
- 人气:
警告-本标准并未指出所有可能的安全问题。使用者有责任采取适当的安全和健康措施,并保证符合国家有关法规规定的条件。
1 范围
本标准规定了家具和组件在火焰引燃下的燃烧性能试验方法。
本标准适用于各种场所的家具和组件(含座垫、靠垫)。
2 规范性引用文件
下列文件对于本文件的应用是必不可少的。凡是注日期的引用文件,仅注日期的版本适用于本文件。凡是不注日期的引用文件,其最新版本(包括所有的修改单)适用于本文件。
GB/T 25207-2010 火灾试验 表面制品的实体房间火试验方法
3 术语和定义
下列术语和定义适用于本文件。
3.1
家具和组件 furniture and subassemblies
供人们坐、卧或支承与贮存物品的器具。
3.2
软垫家具 upholstered furniture
以木质材料、金属等为框架,用弹簧、绷带、泡沫等作为承重材料,表面以皮、布、化纤包覆制成的以软体材料为主的家具。其特点是包含有软体材料的家具。
3.3
热释放速率 heat release rate
HRR
在规定条件下,材料在单位时间内燃烧所释放出的热量。
3.4
热释放总量 total heat release
THR
热释放速率在规定时间内的积分值。
3.5
质量损失率 mass loss rate
单位时间内的质量损失。
4 试验装置
4.1 试验装置的组成
试验装置由点火源、锥形收集器、排烟管道、风机、称重台及测量装置等组成。
4.2 点火源
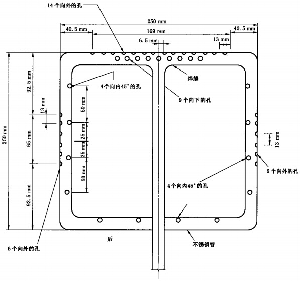
4.2.1 软垫家具和组件(含座垫、靠垫)燃烧性能试验采用(250mm±10mm)×(250mm±10mm)的方形点火器作为点火源,点火源可采用工业丙烷或天然气作为燃料。点火器的边管由不锈钢管制作,材料厚度0.89mm±0.05mm,管直径13mm±1mm。前边管开有14个向外的孔,9个向下的孔,每个孔相距13mm±1mm;右边管和左边管向外各开6个孔,每个孔间距13mm±1mm,另在右边管、左边管和后边管向内45°的位置各开4个孔,每个孔间距50mm±2mm。所有孔的直径均为1mm士0.1mm(见图1和图2)。长1.07m±0.2m的点火器直臂焊接在前边管的后部,与点火器平面呈30°角(见图3)。点火器置于可调高度的支撑杆上,通过砝码或其他机械装置保持平衡。

图1 方形点火器俯视图

图2 方形点火器各边的截面图

图3 方形点火器的侧视图
4.2.2 其他家具和组件燃烧性能试验采用GB/T 25207-2010中附录A所规定的点火源,点火源可根据需要移动,并能安全地固定。
4.2.3 点火源可采用工业丙烷或甲烷作为燃料。
4.3 收集和排烟系统(锥形收集器和排烟管道)
4.3.1 锥形烟气收集器应安装在称重台和试样的正上方,底部尺寸3000mm×3000mm,高1000mm,锥形烟气收集器的顶部为900mm×900mm×900mm的正方体,为增加气体混合效果,采用两块500mm×900mm的钢板安装在顶部的正方体内,形成烟气均混器。收集罩底部与称重台垂直距离不小于1000mm且不宜大于2400mm。其结构尺寸见图4。
4.3.2 排烟管道的安装要求及测量位置见GB/T 25207-2010中附录D。
4.3.3 排烟系统应有足够的能力收集燃烧试验产生的所有烟气,风机的排气量应连续可调,排烟速率不应小于0.5m3/s。
4.3.4 能产生相近结果的排烟系统允许替换使用。
以上为标准部分内容,如需看标准全文,请到相关授权网站购买标准正版。
- 2023-08-22欧宝网页版登录入口维修保养记录
- 2023-08-22欧宝网页版登录入口设施维修维护
- 2023-08-19欧宝网页版登录入口水池维修
- 2023-08-19欧宝网页版登录入口水炮维修
- 2023-08-19欧宝网页版登录入口线路维修
- 2023-08-19欧宝网页版登录入口维保服务系统
- 2023-08-19欧宝网页版登录入口主机维修维保大全
- 2023-08-19欧宝网页版登录入口维保作用
- 2023-08-18欧宝网页版登录入口维保工作联系单
- 2023-08-18欧宝网页版登录入口维保每年都要做吗
- 2023-08-18 欧宝网页版登录入口维保技术服务
- 2023-08-18欧宝网页版登录入口主板维修
- 2023-08-18欧宝网页版登录入口维保软件
- 2023-08-18欧宝网页版登录入口维保规章制度
- 2023-08-17欧宝网页版登录入口检测和维保
- 2023-08-17欧宝网页版登录入口维保检查
-
IG541混合气体灭火系统
IG541混合气体灭火系统:IG-541灭火系统采用的IG-541混合气体灭火剂是由大气层中的氮气(N2)、氩气(Ar)和二氧化碳(CO2)三种气体分别以52%、40%、8%的比例混合而成的一种灭火剂 -
二氧化碳气体灭火系统
二氧化碳气体灭火系统:二氧化碳气体灭火系统由瓶架、灭火剂瓶组、泄漏检测装置、容器阀、金属软管、单向阀(灭火剂管)、集流管、安全泄漏装置、选择阀、信号反馈装置、灭火剂输送管、喷嘴、驱动气体瓶组、电磁驱动 -
七氟丙烷灭火系统
七氟丙烷(HFC—227ea)灭火系统是一种高效能的灭火设备,其灭火剂HFC—ea是一种无色、无味、低毒性、绝缘性好、无二次污染的气体,对大气臭氧层的耗损潜能值(ODP)为零,是卤代烷1211、130 -
手提式干粉灭火器
手提式干粉灭火器适灭火时,可手提或肩扛灭火器快速奔赴火场,在距燃烧处5米左右,放下灭火器。如在室外,应选择在上风方向喷射。使用的干粉灭火器若是外挂式储压式的,操作者应一手紧握喷枪、另一手提起储气瓶上的


