GB/T 14768-2015 地毯燃烧性能45°试验方法及评定
- 发表时间:2022-11-20
- 来源:共立欧宝网页版登录入口
- 人气:
1 范围
本标准规定了地毯在实验室的控制条件下,以45°倾斜放置的地毯试样表面在火焰作用下燃烧性能的试验方法及评定。
本标准适用于各种纤维组分和组织结构的地毯。
本标准不适用于其他试验位置的地毯燃烧性能和地毯在实际着火条件下危险性的评定。
2 规范性引用文件
下列文件对于本文件的应用是必不可少的。凡是注日期的引用文件,仅注日期的版本适用于本文件。凡是不注日期的引用文件,其最新版本(包括所有修改单)适用于本文件。
GB/T 3291.3 纺织 纺织材料性能和试验术语 第3部分:通用
3 术语和定义
GB/T 3291.3界定的以及下列术语和定义适用于本文件。
3.1
点燃时间 ignition time
不论材料是否燃着,材料在点火源中规定的暴露时间。
3.2
续燃时间 afterflame time
在规定的试验条件下,移开点火源后材料持续有焰燃烧的时间。
3.3
阴燃时间 afterglow time
在规定的试验条件下,当有焰燃烧终止后,或本为无焰燃烧者,移开火源后,材料持续无焰燃烧的时间。
3.4
损毁长度 damaged length
在规定的试验条件下,在规定方向上材料损毁部分的最大长度。
4 原理
在规定的试验条件下,对45°倾斜放置的地毯试样表面点火一定的时间,测量其试样的损毁长度、续燃时间和阴燃时间。
5 设备和材料
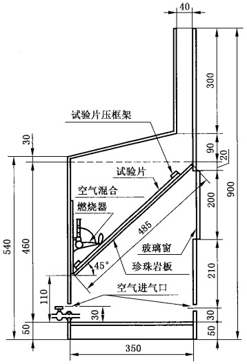
5.1 45°燃烧试验仪:燃烧试验仪的燃烧箱体用不锈钢材料制成,箱体应装有玻璃观察窗,箱的顶部装有排烟口,两侧下部各开有一排通风孔,箱内设有试样夹持框架装置与水平位置成45°,试验箱由定时、点火装置及安全控制系统等组成,见图1。
单位为毫米

图1 45°燃烧试验仪
5.2 试样框架:试样框架由压框和底板构成,用以固定试样。压框由不锈钢制成,底板为石棉水泥珍珠岩板,见图2。
单位为毫米

图2 试样压框及石棉水泥珍珠岩板
5.3 燃烧器及安装:燃烧器由燃烧管、燃气喷嘴和火焰稳定器等组成,燃烧器及安装见图3。
单位为毫米

图3 燃烧器及安装
5.4 燃气介质:采用液化石油气。
5.5 恒温干燥箱:应有鼓风和恒温控制。
5.6 干燥器:用以存放干燥后的试样,使用变色硅胶为干燥剂。
5.7 秒表:计时精度为0.1s。
5.8 钢直尺:分度值为1mm。
5.9 吸尘器和刷子:用以清洁试样。
5.10 手套:聚乙烯、聚丙烯或橡胶材质的手套均可。
6 试样及调湿
6.1 沿平行和垂直于生产方向各截取三块试样,尺寸为400mm×220mm。用吸尘器和刷子清洁试样,除去试样表面的散绒毛、纱头等物,将试样表面的绒头刷起竖立。
6.2 试样调湿:把试样放在(50±2)℃的恒温干燥箱内放置24h或在(105±2)℃的恒温干燥箱内放置1h后,将试样迅速移入干燥器内,直至达到室温。
7 试验程序
7.1 试验应在温度10℃~30℃,相对湿度20%~65%的大气中进行。
7.2 将试验仪放在通风橱内,接通电源和气源。
7.3 点着燃烧器,维持燃烧器的入口压力为3.92kPa(400mm H2O),调节火焰高度为24mm。
7.4 戴上手套,从干燥器内取出一块试样,毯面朝上迅速放入试验箱内的底板上,再用压框压住四周,使其固定在45°位置不致滑动。
7.5 将燃烧器水平放置,根据试样厚度调节燃烧器喷嘴前端与试样表面的距离为1mm。
7.6 关闭试验箱门,启动点火开关,待火焰稳定后将燃烧器水平放置,对试样表面点火30s。试样从干燥器取出至点燃应在2min以内,如超过2min应另取试样,按7.4~7.6步骤重新试验。
7.7 观察试样的燃烧情况,记录试样的续燃时间和阴燃时间,精确至0.1s。
7.8 开启通风橱的排风装置,排除烟雾及有毒气体。打开试验箱门取出试样,测量损毁长度,精确至1mm。
7.9 清除试验箱内的残留物后,再进行下一块试样的试验。
8 试验结果的表示
分别从平行和垂直于生产方向的试样中,选取损毁长度、续燃时间和阴燃时间的最大测量值。损毁长度精确至1mm,续燃时间和阴燃时间精确至0.1s。
9 试验结果的评定
每块试样纵向和横向的损毁长度应小于或等于100mm,续燃时间和阴燃时间应小于或等于20.0s。如其中有一块燃烧不合格,则判该样品为不合格品。
10 试验报告
试验报告应包括以下内容:
a)说明试验是按本标准进行的,以及任何偏离本试验方法的细节;
b)试验和调湿采用的温湿度条件;
c)试样的品种、规格;
d)每个方向的损毁长度、续燃时间和阴燃时间分别以最大测量值表示;
e) 试验结果的评定;
f) 试验日期。
以上为标准部分内容,如需看标准全文,请到相关授权网站购买标准正版。
- 2023-08-22欧宝网页版登录入口维修保养记录
- 2023-08-22欧宝网页版登录入口设施维修维护
- 2023-08-19欧宝网页版登录入口水池维修
- 2023-08-19欧宝网页版登录入口水炮维修
- 2023-08-19欧宝网页版登录入口线路维修
- 2023-08-19欧宝网页版登录入口维保服务系统
- 2023-08-19欧宝网页版登录入口主机维修维保大全
- 2023-08-19欧宝网页版登录入口维保作用
- 2023-08-18欧宝网页版登录入口维保工作联系单
- 2023-08-18欧宝网页版登录入口维保每年都要做吗
- 2023-08-18 欧宝网页版登录入口维保技术服务
- 2023-08-18欧宝网页版登录入口主板维修
- 2023-08-18欧宝网页版登录入口维保软件
- 2023-08-18欧宝网页版登录入口维保规章制度
- 2023-08-17欧宝网页版登录入口检测和维保
- 2023-08-17欧宝网页版登录入口维保检查
-
IG541混合气体灭火系统
IG541混合气体灭火系统:IG-541灭火系统采用的IG-541混合气体灭火剂是由大气层中的氮气(N2)、氩气(Ar)和二氧化碳(CO2)三种气体分别以52%、40%、8%的比例混合而成的一种灭火剂 -
二氧化碳气体灭火系统
二氧化碳气体灭火系统:二氧化碳气体灭火系统由瓶架、灭火剂瓶组、泄漏检测装置、容器阀、金属软管、单向阀(灭火剂管)、集流管、安全泄漏装置、选择阀、信号反馈装置、灭火剂输送管、喷嘴、驱动气体瓶组、电磁驱动 -
七氟丙烷灭火系统
七氟丙烷(HFC—227ea)灭火系统是一种高效能的灭火设备,其灭火剂HFC—ea是一种无色、无味、低毒性、绝缘性好、无二次污染的气体,对大气臭氧层的耗损潜能值(ODP)为零,是卤代烷1211、130 -
手提式干粉灭火器
手提式干粉灭火器适灭火时,可手提或肩扛灭火器快速奔赴火场,在距燃烧处5米左右,放下灭火器。如在室外,应选择在上风方向喷射。使用的干粉灭火器若是外挂式储压式的,操作者应一手紧握喷枪、另一手提起储气瓶上的


