GB/T 32086-2015 特定种类汽车内饰材料垂直燃烧特性技术要求和试验方法
- 发表时间:2022-11-20
- 来源:共立欧宝网页版登录入口
- 人气:
1 范围
本标准规定了特定种类汽车内饰材料垂直燃烧特性的技术要求和试验方法。
本标准适用于运载超过22名乘客的M3类汽车内饰用窗帘、遮阳帘和/或其他内部悬挂材料,不适用于有站立乘客的城市客车。
2 术语和定义
下列术语和定义适用于本文件。
2.1
燃烧速度 burning rate
燃烧距离与所用时间的比值,单位为毫米每分(mm/min)。
2.2
内饰材料 interior material
窗帘、遮阳帘和/或其他内部悬挂材料。
3 技术要求
垂直燃烧速度应不大于100mm/min。
4 试验方法
4.1 原理
将试样垂直固定到矩形框架上,在燃烧箱中用规定火焰引燃试样,测定试样燃烧距离和所用时间。
4.2 试验装置及器具
4.2.1 试样固定架
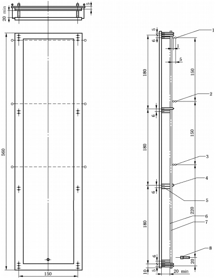
试样固定架应是一个矩形框架,结构如图1所示。框架高560mm,由两根间距为150mm的平行杆连接组成,杆上有固定试样的固定针。固定针直径应不大于2mm,长度至少27mm。将试样固定架安装在通风橱内相应支架上,保证固定架在试验期间始终处于垂直状态。
为将试样固定在固定针上,并离框架有一段距离,需在固定针附近安装直径为2mm,高度至少为20mm的定位柱。
4.2.2 压板
使用U形压板保证试样在试样固定架上的垂直平整性。U形压板应平整且具有刚性,用适当材料制成、尺寸相当于试样固定架尺寸,厚度为1.0mm±0.1mm。在压板的左右两侧钻出直径大约为4mm的12个圆孔,圆孔位置应保证其圆心间距等于试样固定架上固定针之间的距离(见图1)。
4.2.3 燃气灯
燃气灯提供试验火源,其描述和结构需遵照附录A的规定。
4.2.4 燃气
燃气灯使用的燃气为工业用丙烷气体、丁烷气体或液化石油气。
4.2.5 标记线
白色丝光棉线,线密度最大为50tex。
单位为毫米

说明:
1-第三标记线;
2-第二标记线;
3-第一标记线:
4-固定针:
5-定位柱:
6-试样;
7-压板;
8-燃气灯。
图1 试样固定架
4.2.6 秒表
测量时间用秒表精度不低于0.5s。
4.2.7 钢板尺
钢板尺量程600mm以上,精度为1mm。
4.2.8 通风橱
试样固定架应放在通风橱中,通风橱内部容积为试样固定架体积的20倍~110倍,且通风橱的长、宽、高的任一尺寸不得超过另外两个尺寸中任一尺寸的2倍。
试验前,在距离试样固定架最终确定位置前后各100mm处测量空气流过通风橱的垂直速度,该速度应在0.10m/s~0.30m/s之间。通风橱可使用自然通风或适当风速通风。
4.3 试样
4.3.1 尺寸
试样尺寸为长560mm±2mm,宽170mm±2mm,厚度为零件厚度。
4.3.2 取样
在经向和纬向分别裁取3块(或更多)试样进行燃烧试验。取样方法如下:
a)若零件的形状和尺寸符合取样要求,试样应从零件上裁取。
b)若零件的形状和尺寸不符合取样要求,可用同材料同工艺制成、结构与零件一致的标准试样进行试验。
c)当材料按整个幅宽供货时,需将距边缘100mm的材料裁掉,然后在其余部分等距、均匀取样。
4.3.3 预处理
试样在温度为23℃±2℃、相对湿度为50%±5%的标准状态下放置至少24h,直到开始试验。
4.4 试验步骤
4.4.1 在温度为10℃~30℃、相对湿度为15%~80%的环境条件下进行试验。
4.4.2 燃气灯在试样前下方,位于通过试样的垂直中心线与试样表面呈垂直状态的平面内,燃气灯中心轴向上倾斜,与试样所在平面成30°角,燃气灯顶部和试样下边缘的距离为20mm,示意图如图2所示。燃气灯垂直放置时点燃燃气灯,调节火焰高度至40mm±2mm,该距离是燃气灯喷嘴口与火焰顶端距离。在开始第一次试验前,火焰应在此状态下稳定燃烧至少2min,然后熄灭。
以上为标准部分内容,如需看标准全文,请到相关授权网站购买标准正版。
- 2023-08-22欧宝网页版登录入口维修保养记录
- 2023-08-22欧宝网页版登录入口设施维修维护
- 2023-08-19欧宝网页版登录入口水池维修
- 2023-08-19欧宝网页版登录入口水炮维修
- 2023-08-19欧宝网页版登录入口线路维修
- 2023-08-19欧宝网页版登录入口维保服务系统
- 2023-08-19欧宝网页版登录入口主机维修维保大全
- 2023-08-19欧宝网页版登录入口维保作用
- 2023-08-18欧宝网页版登录入口维保工作联系单
- 2023-08-18欧宝网页版登录入口维保每年都要做吗
- 2023-08-18 欧宝网页版登录入口维保技术服务
- 2023-08-18欧宝网页版登录入口主板维修
- 2023-08-18欧宝网页版登录入口维保软件
- 2023-08-18欧宝网页版登录入口维保规章制度
- 2023-08-17欧宝网页版登录入口检测和维保
- 2023-08-17欧宝网页版登录入口维保检查
-
IG541混合气体灭火系统
IG541混合气体灭火系统:IG-541灭火系统采用的IG-541混合气体灭火剂是由大气层中的氮气(N2)、氩气(Ar)和二氧化碳(CO2)三种气体分别以52%、40%、8%的比例混合而成的一种灭火剂 -
二氧化碳气体灭火系统
二氧化碳气体灭火系统:二氧化碳气体灭火系统由瓶架、灭火剂瓶组、泄漏检测装置、容器阀、金属软管、单向阀(灭火剂管)、集流管、安全泄漏装置、选择阀、信号反馈装置、灭火剂输送管、喷嘴、驱动气体瓶组、电磁驱动 -
七氟丙烷灭火系统
七氟丙烷(HFC—227ea)灭火系统是一种高效能的灭火设备,其灭火剂HFC—ea是一种无色、无味、低毒性、绝缘性好、无二次污染的气体,对大气臭氧层的耗损潜能值(ODP)为零,是卤代烷1211、130 -
手提式干粉灭火器
手提式干粉灭火器适灭火时,可手提或肩扛灭火器快速奔赴火场,在距燃烧处5米左右,放下灭火器。如在室外,应选择在上风方向喷射。使用的干粉灭火器若是外挂式储压式的,操作者应一手紧握喷枪、另一手提起储气瓶上的


