MT 234-1991 3t矿车 立井多绳罐笼
- 发表时间:2022-08-30
- 来源:网络
- 人气:
1 主题内容与适用范围
本标准规定了 3 t矿车 立井多绳罐笼(以下简称罐笼)的产品分类、技术要求、试验方法、检验规则 和标志、包装、运输、贮存。
本标准适用于3 t矿车立井多绳罐笼。罐笼与多绳摩擦式提升机和组合钢罐道配合,用于提升 3 t标准矿车、设备或人员。
本标准与首绳悬挂装置、尾绳悬挂装置和滚轮罐耳配套使用。
2 引用标准
GB 699 优质碳素结构钢钢号和一般技术条件
GB 700 普通碳素结构钢技术条件
GB 1184 形状和位置公差未注公差的规定
GB 1228 钢结构用高强度大六角头螺栓
GB 1229 钢结构用高强度大六角螺母
GB 1230 钢结构用高强度垫圈
GB 1231 钢结构用高强度大六角头螺栓、大六角螺母、垫圈技术条件
GB 1804 公差与配合未注公差尺寸的极限偏差
GB 3322.1煤矿矿车基本参数及尺寸 固定车箱式
GB 3632 钢结构用扭剪型高强度螺栓连接副型式尺寸
GB 3633 钢结构用扭剪型高强度螺栓连接副技术条件
GBJ 17 钢结构设计规范
JB/ZQ 3011 工程机械焊接件通用技术条件
MT 236 组合钢罐道滚轮罐耳
3 术语
3.1 罐体:本标准规定不含首、尾绳悬挂装置、滚轮罐耳在内的罐笼本体部分简称罐体。
3.2 首绳悬挂装置:罐体与提升绳之间的连接装置。
3.3 尾绳悬挂装置:平衡钢丝绳与罐体底部的连接装置(分有圆、扁两种尾绳悬挂装置)。
3.4 过卷托罐逆止爪装置:罐笼在井口过卷后,为防止罐笼下坠的安全装置。
3.5 四角罐耳:罐笼在进出车水平,为稳罐而设置在罐笼四角的导向件。
3.6 制动罐耳:进入楔形罐道的刚性罐耳。
4 产品分类
4.1 品种
本标准共编制6个品种
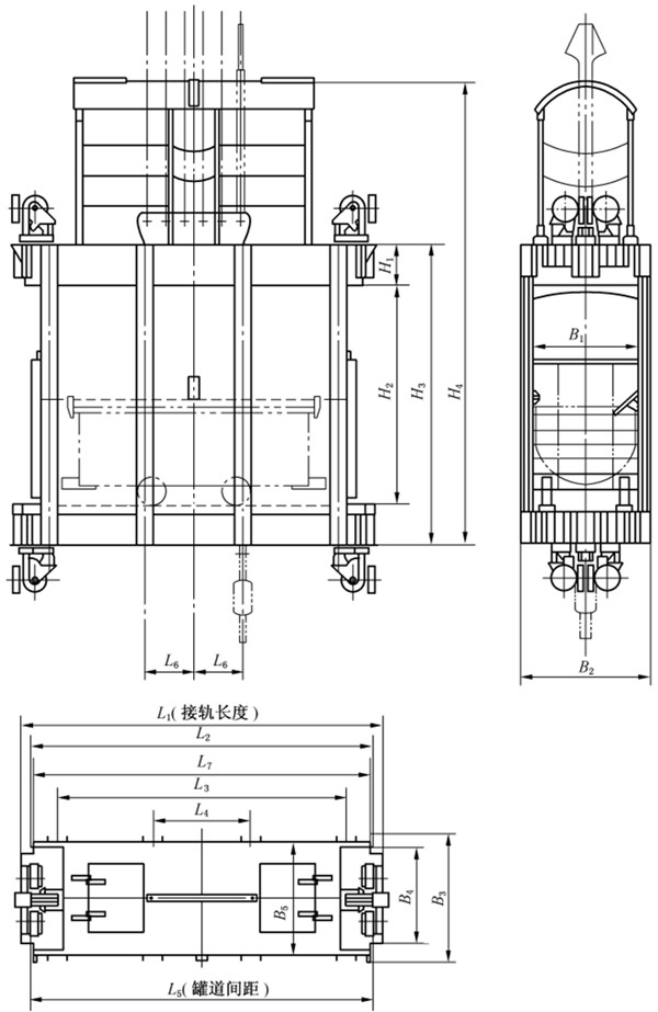
a. 一层一车窄罐笼(图1)
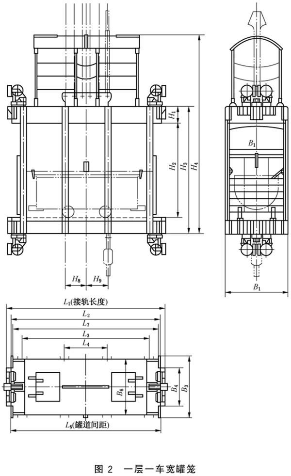
b. 一层一车宽罐笼(图2)
c. 二层二车窄罐笼(图3)
d. 二层二车宽罐笼(图4)
e. 三层二车窄罐笼(图5)
f. 三层二车宽罐笼(图6)

图1 一层一车窄罐笼

以上为标准部分内容,如需看标准全文,请到相关授权网站购买标准正版。
- 2023-08-22欧宝网页版登录入口维修保养记录
- 2023-08-22欧宝网页版登录入口设施维修维护
- 2023-08-19欧宝网页版登录入口水池维修
- 2023-08-19欧宝网页版登录入口水炮维修
- 2023-08-19欧宝网页版登录入口线路维修
- 2023-08-19欧宝网页版登录入口维保服务系统
- 2023-08-19欧宝网页版登录入口主机维修维保大全
- 2023-08-19欧宝网页版登录入口维保作用
- 2023-08-18欧宝网页版登录入口维保工作联系单
- 2023-08-18欧宝网页版登录入口维保每年都要做吗
- 2023-08-18 欧宝网页版登录入口维保技术服务
- 2023-08-18欧宝网页版登录入口主板维修
- 2023-08-18欧宝网页版登录入口维保软件
- 2023-08-18欧宝网页版登录入口维保规章制度
- 2023-08-17欧宝网页版登录入口检测和维保
- 2023-08-17欧宝网页版登录入口维保检查
-
IG541混合气体灭火系统
IG541混合气体灭火系统:IG-541灭火系统采用的IG-541混合气体灭火剂是由大气层中的氮气(N2)、氩气(Ar)和二氧化碳(CO2)三种气体分别以52%、40%、8%的比例混合而成的一种灭火剂 -
二氧化碳气体灭火系统
二氧化碳气体灭火系统:二氧化碳气体灭火系统由瓶架、灭火剂瓶组、泄漏检测装置、容器阀、金属软管、单向阀(灭火剂管)、集流管、安全泄漏装置、选择阀、信号反馈装置、灭火剂输送管、喷嘴、驱动气体瓶组、电磁驱动 -
七氟丙烷灭火系统
七氟丙烷(HFC—227ea)灭火系统是一种高效能的灭火设备,其灭火剂HFC—ea是一种无色、无味、低毒性、绝缘性好、无二次污染的气体,对大气臭氧层的耗损潜能值(ODP)为零,是卤代烷1211、130 -
手提式干粉灭火器
手提式干粉灭火器适灭火时,可手提或肩扛灭火器快速奔赴火场,在距燃烧处5米左右,放下灭火器。如在室外,应选择在上风方向喷射。使用的干粉灭火器若是外挂式储压式的,操作者应一手紧握喷枪、另一手提起储气瓶上的


