MT 233-2011 1.5t矿车 立井多绳罐笼
- 发表时间:2022-08-29
- 来源:共立欧宝网页版登录入口
- 人气:
1 范围
本标准规定了 1.5 t矿车立井多绳罐笼(以下简称罐笼)的术语和定义、产品分类、技术要求、试验方法、检验规则、标志、包装、运输和贮存。
本标准适用于提升1.5 t标准矿车、材料、设备及人员的立井多绳钢罐道罐笼。
2 规范性引用文件
下列文件中的条款通过本标准的引用而成为本标准的条款。凡是注日期的引用文件,其随后所有的修改单(不包括勘误的内容)或修订版均不适用于本标准,然而,鼓励根据本标准达成协议的各方研究 是否可使用这些文件的最新版本。凡是不注日期的引用文件,其最新版本(包括所有的修改单)适用于 本文件。
GB/T 27 六角头铰制孔用螺栓A和B级
GB/T 116 铆钉技术条件
GB/T 699 优质碳素结构钢
GB/T 700 碳素结构钢(GB/T 700-2006,ISO 630: 1995,NEQ)
GB/T 985.1 气焊、焊条电弧焊、气体保护焊和高能束焊的推荐坡口(GB/T 985.1-2008, ISO 9692-1:2003,MOD)
GB/T 1184-1996 形状和位置公差 未注公差值(eqvISO 2768-2:1989)
GB/T 1228 钢结构用高强度大六角头螺栓(GB/T 1228-2006,ISO 7412-1984,NEQ)
GB/T 1591低合金高强度结构钢
GB/T 1804-2000 一般公差 未注公差的线性和角度尺寸的公差(eqv ISO 2768-1:1989)
GB/T 3632 钢结构用扭剪型高强度螺栓连接副
GB/T 9286 色漆和清漆 漆膜的划格试验(GB/T 9286-1998,eqvISO 2409:1992)
GB/T 15663.5 煤矿科技术语 第5部分:提升运输
GB 50017 钢结构设计规范
JB/T 5000.3-2007 重型机械通用技术条件 第3部分:焊接件
JB/T 5000.10 重型机械通用技术条件 第10部分:装配
JB/T 5000.12-2007 重型机械通用技术条件 第12部分:涂装
MT/T 154.1 煤矿机电产品型号编制方法 第1部分:导则
MT 235 立井多绳罐笼平衡锤
MT/T 236 矩形钢罐道滚轮罐耳
MT 237.3 多绳提升容器 B型钢丝绳悬挂装置 圆尾绳悬挂装置
MT 237.4 多绳提升容器B型钢丝绳悬挂装置扁尾绳悬挂装置
MT 684 矿用提升容器重要承载件无损探伤方法与验收规范
《煤矿安全规程》(国家安全生产监督管理总局、国家煤矿安全监察局)
3 术语和定义
GB/T 15663.5 确立的以及下列术语和定义适用于本标准。
3.1
罐体 cage body
不含首绳悬挂装置、尾绳悬挂装置、滚轮罐耳、罐内阻车器、罐笼门和安全篷的罐笼本体框架。
3.2
四角罐耳 four corner rouer
罐笼在进出车水平,为稳罐需要在罐笼四角设置的导向构件。
3.3
滑动罐耳slide rouer
当滚轮罐身损坏和更换时起安全保护作用,而正常运行时不接触罐道刚性导向构件。
4 产品分类
4.1 型式
4.1.1 首绳悬挂装置与罐笼用销轴直接连接,连接孔中心距按多绳摩擦式提升机钢丝绳间距确定;尾 绳悬挂装置采用MT 237.3、MT 237.4规定的圆尾绳和扁尾绳两种。
4.1.2 在罐笼的上、中、下盘体两端设置盖板门(下盘盖板门用螺栓锁紧),以便下放长材料或作紧急安 全出口用。
4.1.3 罐笼两端采用上、下开闭的帘式罐笼门或其他形式的罐笼门。
4.1.4 罐笼顶部设置可拆卸的安全篷。
4.1.5 罐体采用型钢立柱。立柱与各盘体、盘体主要受力杆件之间采用GB/T 1228、GB/T 3632规定 的高强度螺栓或GB/T 27规定的较制孔用螺栓联接。
4.1.6 罐笼在进出车水平采用摇台承接方式。罐笼内轨道承接摇台的导轨衬分1型(槽形)和n型(平 形)两种,见图1、图2。

4.1.7 罐笼采用MT 236规定的滚轮罐耳沿矩形钢罐道导向,滚轮罐耳和滑动罐耳均设置在罐笼的两 端。
4.1.8 罐笼各盘体四角设置四角罐耳。罐笼在井口与井底进出车水平采用刚性四角罐道或其他稳罐 装置稳罐。
4.1.9 井口与井底同侧进出车的罐笼内轨面采用凸块或凹槽定位,上部挡车器阻车。井口与井底异侧 进出车的罐笼内轨面采用滑块式阻车器定位,上部挡车器阻车。
4.1.10根据井筒深度、多绳摩擦式提升机防滑要求,在罐笼盘体内设可调配重块。
4.2 分类
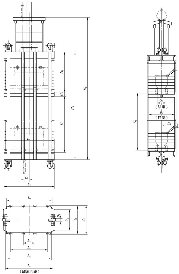
罐笼按矿车轨距、矿车数量、外形尺寸分为下列10个品种、14种型式:
a)600 mm轨距1.5 t矿车二层二车罐笼,窄型,净宽1 200 mm(图3);
b)600 mm轨距1.5 t矿车二层二车罐笼,宽型,净宽1 700 mm(图3);

图3 600 mm轨距1.5 t矿车二层二车窄型、宽型罐笼
以上为标准部分内容,如需看标准全文,请到相关授权网站购买标准正版。
- 2023-08-22欧宝网页版登录入口维修保养记录
- 2023-08-22欧宝网页版登录入口设施维修维护
- 2023-08-19欧宝网页版登录入口水池维修
- 2023-08-19欧宝网页版登录入口水炮维修
- 2023-08-19欧宝网页版登录入口线路维修
- 2023-08-19欧宝网页版登录入口维保服务系统
- 2023-08-19欧宝网页版登录入口主机维修维保大全
- 2023-08-19欧宝网页版登录入口维保作用
- 2023-08-18欧宝网页版登录入口维保工作联系单
- 2023-08-18欧宝网页版登录入口维保每年都要做吗
- 2023-08-18 欧宝网页版登录入口维保技术服务
- 2023-08-18欧宝网页版登录入口主板维修
- 2023-08-18欧宝网页版登录入口维保软件
- 2023-08-18欧宝网页版登录入口维保规章制度
- 2023-08-17欧宝网页版登录入口检测和维保
- 2023-08-17欧宝网页版登录入口维保检查
-
IG541混合气体灭火系统
IG541混合气体灭火系统:IG-541灭火系统采用的IG-541混合气体灭火剂是由大气层中的氮气(N2)、氩气(Ar)和二氧化碳(CO2)三种气体分别以52%、40%、8%的比例混合而成的一种灭火剂 -
二氧化碳气体灭火系统
二氧化碳气体灭火系统:二氧化碳气体灭火系统由瓶架、灭火剂瓶组、泄漏检测装置、容器阀、金属软管、单向阀(灭火剂管)、集流管、安全泄漏装置、选择阀、信号反馈装置、灭火剂输送管、喷嘴、驱动气体瓶组、电磁驱动 -
七氟丙烷灭火系统
七氟丙烷(HFC—227ea)灭火系统是一种高效能的灭火设备,其灭火剂HFC—ea是一种无色、无味、低毒性、绝缘性好、无二次污染的气体,对大气臭氧层的耗损潜能值(ODP)为零,是卤代烷1211、130 -
手提式干粉灭火器
手提式干粉灭火器适灭火时,可手提或肩扛灭火器快速奔赴火场,在距燃烧处5米左右,放下灭火器。如在室外,应选择在上风方向喷射。使用的干粉灭火器若是外挂式储压式的,操作者应一手紧握喷枪、另一手提起储气瓶上的


