GB/T 23913.3-2009 复合岩棉板耐火舱室 第3部分:防火门
- 发表时间:2022-11-07
- 来源:共立欧宝网页版登录入口
- 人气:
1 范围
GB/T 23913的本部分规定了复合岩棉板耐火舱室中防火门的分类和标记、要求、试验方法、检验规则等。
本部分适用于船舶和海洋工程建筑物上具有耐火分隔要求的舱室和生活模块中防火门的设计、制造和验收。
2 规范性引用文件
下列文件中的条款通过GB/T 23913的本部分的引用而成为本部分的条款。凡是注日期的引用文件,其随后所有的修改单(不包括勘误的内容)或修订版均不适用于本部分,然而,鼓励根据本部分达成协议的各方研究是否可使用这些文件的最新版本。凡是不注日期的引用文件,其最新版本适用于本部分。
GB/T 700-2006 碳素结构钢(ISO 630:1995,Structural steels-Plates,wide flats,bars,sections and profiles,NEQ)
GB/T 706-2008 热轧型钢
GB/T 708-2006 冷轧钢板和钢带的尺寸、外形、重量及允许偏差(ISO 16162:2000,Continuouslycold-rolled steel sheet products-Dimensional and shape tolerances,NEQ)
GB/T 1720-1979 漆膜附着力测定法
GB/T 2518-2008 连续热镀锌钢板及钢带
GB/T 3003-2006 耐火材料 陶瓷纤维及制品
GB/T 3280-2007 不锈钢冷轧钢板和钢带
GB/T 4237-2007 不锈钢热轧钢板和钢带
GB/T 11874 船用门和窗开启方向和符号标志(GB/T 11874-1989,neq ISO/R 1226:1970)
CB/T 3830-1998 船用岩棉及其制品
中国船级社 海上移动平台入级与建造规范 2005
国际海事组织(IMO)国际海上人命安全公约 2004综合文本
国际海事组织(IMO)国际耐火试验程序应用规则(FTP)附件1(FTPC) 第1部分/IMO.A799(19)经修正的船用结构材料不燃性试验方法的建议案
国际海事组织(IMO)国际耐火试验程序应用规则(FTP)附件1(FTPC) 第3部分/IMO.A754(18)关于“A”、“B”和“F”级分隔耐火试验程序的建议案
国际海事组织(IMO)国际耐火试验程序应用规则(FTP)附件1(FTPC)第5部分/IMO.A653(16)关于舱壁、天花板饰面材料表面燃烧性的耐火试验程序的修正建议
UI SC126(针对SOLAS II-2章中5.3,6.2,6.3,货船的防火材料性能要求的解释)
UI SC127[针对SOLAS II-2章中6.2,对材料表面的油漆、清漆和其他饰面涂料的烟气及毒性物质限制要求的解释的第二修订版(Rev.2)]
3 术语和定义
国际海事组织(IMO)《国际海上人命安全公约》2004综合文本和中国船级社《海上移动平台入级与建造规范》2005中确立的“A”、“B”和“H”级耐火分隔等级的术语和定义适用于GB/T 23913的本部分。
4 分类和标记
4.1 分类
4.1.1 防火门按结构分为单扇防火门和双扇防火门。
4.1.2 防火门按防火级别分为A级、B级和H级防火门。
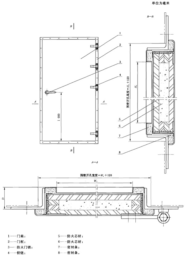
4.2 典型结构型式和主要参数
防火门的典型结构型式及主要参数见表1及图1~图31。
表1 防火门典型结构型式及主要参数 单位为毫米
名称 | 代号 | 防火 级别 | 附件 | 通孔尺寸 | 门框 深度 D | 门扇 厚度 t | 门框 型式 | 安装 要求 | |
高Hc | 宽Mc | ||||||||
单 扇 防 火 门 | H120 | H-120 | W | ≤2 200 | ≤1 300 | 65~440 | 50~80 | C1 | 安装在钢壁上 |
H60 | H-60 | ||||||||
A60 | A-60 | W、P、E、EV | 43~45 | A1、A2、A3、A4、A5、A6、Z | 安装在钢壁或 复合岩棉板与 钢壁组合的衬 板上 | ||||
A30 | A-30 | ||||||||
A15 | A-15 | 38~40 | |||||||
A0 | 0-V V | ||||||||
B15 | B-15 | W、V、E、EV | ≤2100 | ≤1 000 | B1、B2、B3、B4、B5、B6、Z | ||||
BO | B-0 | ||||||||
IB15 | B-15 | S K | 安装在复合岩 棉板上 | ||||||
IBO | B-0 | 50 | |||||||
FB15 | B-15 | - | |||||||
FBO | B-0 | ||||||||
双 扇 防 火 门 | DA60 | 09-V | W、P、E、EV | ≤2100 | ≤2 100 | 65~440 | 43~45 | A1、A2、A3、A4、A5、A6、Z | 安装在钢壁或 复合岩棉板与 钢壁组合的衬 板上 |
DA30 | A-30 | ||||||||
DA15 | A-15 | 38~40 | |||||||
DAO | A-0 | ||||||||
DB15 | B-15 | W、V、E、EV | B1、B2、B3、B4、B5、B6、Z | ||||||
DBO | B-0 | ||||||||
DIB15 | B-15 | W、V、E、EV | 50 | S、K | 安装在复合岩 棉板上 | ||||
DIBO | B-0 | ||||||||
注1:表中符号说明: A、B、H-防火级别;V-通风栅;I-舱室内门; E-逃生口; D-双扇防火门; EV-带通风栅的逃生口;F-风道防火门;W-观察窗; P-欧宝网页版登录入口口。 注2:门框型式符号说明见4.3。 注3:表中附件均为可选件。 | |||||||||

图1 H60、H120级防火门
以上为标准部分内容,如需看标准全文,请到相关授权网站购买标准正版。
- 2023-08-22欧宝网页版登录入口维修保养记录
- 2023-08-22欧宝网页版登录入口设施维修维护
- 2023-08-19欧宝网页版登录入口水池维修
- 2023-08-19欧宝网页版登录入口水炮维修
- 2023-08-19欧宝网页版登录入口线路维修
- 2023-08-19欧宝网页版登录入口维保服务系统
- 2023-08-19欧宝网页版登录入口主机维修维保大全
- 2023-08-19欧宝网页版登录入口维保作用
- 2023-08-18欧宝网页版登录入口维保工作联系单
- 2023-08-18欧宝网页版登录入口维保每年都要做吗
- 2023-08-18 欧宝网页版登录入口维保技术服务
- 2023-08-18欧宝网页版登录入口主板维修
- 2023-08-18欧宝网页版登录入口维保软件
- 2023-08-18欧宝网页版登录入口维保规章制度
- 2023-08-17欧宝网页版登录入口检测和维保
- 2023-08-17欧宝网页版登录入口维保检查
-
IG541混合气体灭火系统
IG541混合气体灭火系统:IG-541灭火系统采用的IG-541混合气体灭火剂是由大气层中的氮气(N2)、氩气(Ar)和二氧化碳(CO2)三种气体分别以52%、40%、8%的比例混合而成的一种灭火剂 -
二氧化碳气体灭火系统
二氧化碳气体灭火系统:二氧化碳气体灭火系统由瓶架、灭火剂瓶组、泄漏检测装置、容器阀、金属软管、单向阀(灭火剂管)、集流管、安全泄漏装置、选择阀、信号反馈装置、灭火剂输送管、喷嘴、驱动气体瓶组、电磁驱动 -
七氟丙烷灭火系统
七氟丙烷(HFC—227ea)灭火系统是一种高效能的灭火设备,其灭火剂HFC—ea是一种无色、无味、低毒性、绝缘性好、无二次污染的气体,对大气臭氧层的耗损潜能值(ODP)为零,是卤代烷1211、130 -
手提式干粉灭火器
手提式干粉灭火器适灭火时,可手提或肩扛灭火器快速奔赴火场,在距燃烧处5米左右,放下灭火器。如在室外,应选择在上风方向喷射。使用的干粉灭火器若是外挂式储压式的,操作者应一手紧握喷枪、另一手提起储气瓶上的


