GB/T 30758-2014 耐火材料 动态杨氏模量试验方法(脉冲激振法)
- 发表时间:2022-12-10
- 来源:共立欧宝网页版登录入口
- 人气:
1 范围
本标准规定了通过测定长条状和圆柱状耐火制品试样在弯曲振动状态下的共振频率,由制品的共振频率、质量和尺寸计算其杨氏模量的试验方法。
注:尽管本标准没有明确描述,采用合适的测试仪器时此方法也适用于高温杨氏模量的测定。
本标准没有规定使用中所有与安全有关的事项。本标准使用者有责任预先建立适当的人身安全条例并确定其限定的范围。
2 规范性引用文件
下列文件对于本文件的应用是必不可少的。凡是注日期的引用文件,仅注日期的版本适用于本文件。凡是不注日期的引用文件,其最新版本(包括所有的修改单)适用于本文件。
ISO 5022:1979 定形耐火制品 抽样验收规则(Shaped refractory products——Sampling and ac-ceptance testing)
ISO 8656-1:1988 耐火制品 原料和不定形材料抽样 第1部分:抽样方案(Refractory prod-ucts-Sampling of raw materials and unshaped products-Part 1:Sampling scheme)
3 术语和定义
下列术语和定义适用于本文件。
3.1
弹性模量 modulus of elasticity;MOE
低于比例极限下,材料应力与应变的比值。
3.2
比例极限 proportional limit
材料不偏离应力与应变比值(胡克定律)曲线的情况下,所能够承受的最大应力值。
3.3
均一性 homogeneous
结构、密度和材质相同。
注:均一性要求所取得的小试样能代表原砖的整体特点,对于耐火材料,只要试样的尺寸比内部大颗粒、晶体、气孔和微裂纹尺寸大,试样就被认为是均一的。
3.4
各向同性 isotropic
试样的弹性性能在所有方向上都是相同的。
3.5
共振频率 resonant frequency
试样受弯曲振动时发生共振的频率。
注:共振频率一般由试样的弹性模量、质量和试样尺寸决定,在振动模式中,最低的共振频率为材料的固有频率。
3.6
弯曲振动 flexural vibrations
长条状或者圆柱状试样受微小弯曲应力作用的一种振动。
3.7
节点 nodes
试样振动过程中振幅为零的位置。
注:对于试样的固有弯曲频率,节点一般在距试样一端距离为0.224L处,其中L为试样长度。
3.8
反节点 anti-nodes
不受约束的长条状或圆柱状试样受振后的最大振幅点位置,一般反节点位置有两个或者更多。
注:共振时,反节点一般位于试样的两端和中心部位。
3.9
平面弯曲 in-plane flexure
试样弯曲方向平行于其主平面。
3.10
垂面弯曲 out-plane flexure
试样弯曲方向垂直于其主平面。
4 原理
冲击器敲击合适几何形状的试样后,测试试样的弯曲共振频率。
传感器(接触式或非接触式)接收试样的振动信号并将其转化为电信号,选择合适的试样支撑位置、敲击位置与信号接收点接收试样的振动信号,通过信号分析器分析得出试样的固有振动频率,将获得的固有振动频率、试样尺寸和质量代入公式计算得出试样的动态杨氏模量。
5 意义和用途
意义和用途如下:
a)可用于评价耐火材料的特性,辅助耐火材料的研究及其质量控制;
b)适用于测试均一性耐火材料的杨氏模量;
c) 为动态测试方法,可测试长条状和圆柱状试样的杨氏模量;
d) 为无损检测,测试过程中,试样仅发生微小变形,对试样损伤非常小,因此测试后试样仍可用于其他性能测试;
e) 可依据试样尺寸、组成和结构变化选择测试范围;
f) 利用冲击器(锤)敲击被简单支撑的试样;
g) 不适用于有大裂纹或空隙的试样;
h) 只局限于测试具有规则几何形状的试样,如对面平行的长条状和圆柱状,因为杨氏模量的计算公式由试样的相关尺寸、质量和共振频率组成;
i) 试样表面不平整或过分粗糙会对计算结果的准确性产生严重影响,动态杨氏模量与试样厚度的立方成反比,所以试样厚度的变化对结果有重要影响;
j) 假定试样为自由振动,无任何约束或阻碍,因此试样应被合适放置,确保其能自由振动。
6 设备
6.1 激振设备
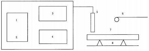
激振设备用于激发试样振动,然后精确探测、分析和记录试样的固有频率或周期。图1为该设备的结构原理图,包括冲击器、传感器(将机械振动转换为电信号)、电信号分析系统(包括信号放大器、信号分析器和频率读出装置)。

说明:
1——频率显示;
2——频率读出;
3——信号放大器;
4——信号分析器;
5——传感器;
6——冲击器;
7——试样;
8——支撑系统;
9——电气系统。
图1 试验设备结构原理图
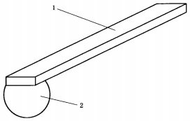
6.2 冲击器
冲击器的重量应满足给予试样的振动信号足够大,达到可测量的机械振动信号;但也不宜过大,以防对试样造成物理损坏或使试样移动。典型的冲击器见图2。
注:冲击器的大小取决于被测试样的大小和物理特性。

说明:
1——韧性聚合物手柄;
2——钢球或其他硬金属球。
以上为标准部分内容,如需看标准全文,请到相关授权网站购买标准正版。
- 2023-08-22欧宝网页版登录入口维修保养记录
- 2023-08-22欧宝网页版登录入口设施维修维护
- 2023-08-19欧宝网页版登录入口水池维修
- 2023-08-19欧宝网页版登录入口水炮维修
- 2023-08-19欧宝网页版登录入口线路维修
- 2023-08-19欧宝网页版登录入口维保服务系统
- 2023-08-19欧宝网页版登录入口主机维修维保大全
- 2023-08-19欧宝网页版登录入口维保作用
- 2023-08-18欧宝网页版登录入口维保工作联系单
- 2023-08-18欧宝网页版登录入口维保每年都要做吗
- 2023-08-18 欧宝网页版登录入口维保技术服务
- 2023-08-18欧宝网页版登录入口主板维修
- 2023-08-18欧宝网页版登录入口维保软件
- 2023-08-18欧宝网页版登录入口维保规章制度
- 2023-08-17欧宝网页版登录入口检测和维保
- 2023-08-17欧宝网页版登录入口维保检查
-
IG541混合气体灭火系统
IG541混合气体灭火系统:IG-541灭火系统采用的IG-541混合气体灭火剂是由大气层中的氮气(N2)、氩气(Ar)和二氧化碳(CO2)三种气体分别以52%、40%、8%的比例混合而成的一种灭火剂 -
二氧化碳气体灭火系统
二氧化碳气体灭火系统:二氧化碳气体灭火系统由瓶架、灭火剂瓶组、泄漏检测装置、容器阀、金属软管、单向阀(灭火剂管)、集流管、安全泄漏装置、选择阀、信号反馈装置、灭火剂输送管、喷嘴、驱动气体瓶组、电磁驱动 -
七氟丙烷灭火系统
七氟丙烷(HFC—227ea)灭火系统是一种高效能的灭火设备,其灭火剂HFC—ea是一种无色、无味、低毒性、绝缘性好、无二次污染的气体,对大气臭氧层的耗损潜能值(ODP)为零,是卤代烷1211、130 -
手提式干粉灭火器
手提式干粉灭火器适灭火时,可手提或肩扛灭火器快速奔赴火场,在距燃烧处5米左右,放下灭火器。如在室外,应选择在上风方向喷射。使用的干粉灭火器若是外挂式储压式的,操作者应一手紧握喷枪、另一手提起储气瓶上的


