GB/T 9978.2-2019 建筑构件耐火试验方法 第2部分:耐火试验试件受火作用均匀性的测量指南
- 发表时间:2022-11-30
- 来源:共立欧宝网页版登录入口
- 人气:
1 范围
GB/T 9978的本部分规定了一种试验方法,用以测量试件在耐火试验炉中按照GB/T 9978.1的规定进行耐火试验时的受火作用均匀性。本部分给出了模拟试件表面附近温度、空气流速和氧含量等参数测量仪器的类型和布置位置,模拟试件内部为冷弯型钢骨架,试件受火面的表面为石膏板。
本部分不包括耐火试验炉的性能要求。
2 规范性引用文件
下列文件对于本文件的应用是必不可少的。凡是注日期的引用文件,仅注日期的版本适用于本文件。凡是不注日期的引用文件,其最新版本(包括所有的修改单)适用于本文件。
GB/T 9775 纸面石膏板(GB/T 9775-2008,ISO 6308:1980,MOD)
GB/T 9978.1 建筑构件耐火试验 第1部分:通用要求(GB/T 9978.1-2008,ISO 834-1:1999,MOD)
3 术语和定义
GB/T 9978.1界定的以及下列术语和定义适用于本文件。
3.1
耐火试验炉的有效开口区域 effective area of furnace opening
在仪器监测范围边界以内的耐火试验炉开口区域。
4 试验装置
4.1 支承结构(模拟试件)
4.1.1 支承结构采用冷弯型钢制作支撑龙骨,支撑龙骨的受火面安装有两层符合GB/T9775规定的耐火纸面石膏板(H类),每层石膏板的厚度不小于16mm;支撑龙骨的背火面安装一层厚度不小于18mm的结构面板。
注:采用胶合板或刨花板作为典型的结构面板。
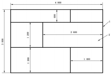
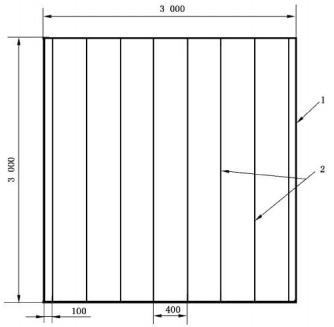
4.1.2 支承结构中,冷弯型钢支撑龙骨、耐火纸面石膏板和结构面板的详细组装构造见图1~图6。其中,图1~图3为水平支承结构,图4~图6为垂直支承结构。图示尺寸的支撑结构中,水平支承结构适用于开口尺寸为3m×4m的水平耐火试验炉;垂直支承结构适用于开口尺寸为3m×3m的垂直耐火试验炉。对应用于其他开口尺寸耐火试验炉的支承结构,相关尺寸需进行必要的修正。
单位为毫米

说明:
1-水平支承结构的四周边界;
2-水平支撑龙骨9根,中心间距为450mm。
图1 水平支承结构构造细节-支撑龙骨布置
单位为毫米

说明:
1-水平支承结构的四周边界;
2-水平支承结构受火面的内层(第一层)石膏板和背火面的结构面板。
图2 水平支承结构构造细节-内层石膏板和结构面板安装布置
单位为毫米

说明:
1-水平支承结构的边界;
2-水平支承结构受火面的外层(第二层)石膏板。
图3 水平支承结构构造细节-外层石膏板安装布置
单位为毫米

说明:
1-垂直支承结构的四周边界;
2-垂直支撑龙骨8根,中心间距为400mm。
图4 垂直支承结构的构造细节-支撑龙骨布置
以上为标准部分内容,可点击下方链接下载标准原文:
- 2023-08-22欧宝网页版登录入口维修保养记录
- 2023-08-22欧宝网页版登录入口设施维修维护
- 2023-08-19欧宝网页版登录入口水池维修
- 2023-08-19欧宝网页版登录入口水炮维修
- 2023-08-19欧宝网页版登录入口线路维修
- 2023-08-19欧宝网页版登录入口维保服务系统
- 2023-08-19欧宝网页版登录入口主机维修维保大全
- 2023-08-19欧宝网页版登录入口维保作用
- 2023-08-18欧宝网页版登录入口维保工作联系单
- 2023-08-18欧宝网页版登录入口维保每年都要做吗
- 2023-08-18 欧宝网页版登录入口维保技术服务
- 2023-08-18欧宝网页版登录入口主板维修
- 2023-08-18欧宝网页版登录入口维保软件
- 2023-08-18欧宝网页版登录入口维保规章制度
- 2023-08-17欧宝网页版登录入口检测和维保
- 2023-08-17欧宝网页版登录入口维保检查
-
IG541混合气体灭火系统
IG541混合气体灭火系统:IG-541灭火系统采用的IG-541混合气体灭火剂是由大气层中的氮气(N2)、氩气(Ar)和二氧化碳(CO2)三种气体分别以52%、40%、8%的比例混合而成的一种灭火剂 -
二氧化碳气体灭火系统
二氧化碳气体灭火系统:二氧化碳气体灭火系统由瓶架、灭火剂瓶组、泄漏检测装置、容器阀、金属软管、单向阀(灭火剂管)、集流管、安全泄漏装置、选择阀、信号反馈装置、灭火剂输送管、喷嘴、驱动气体瓶组、电磁驱动 -
七氟丙烷灭火系统
七氟丙烷(HFC—227ea)灭火系统是一种高效能的灭火设备,其灭火剂HFC—ea是一种无色、无味、低毒性、绝缘性好、无二次污染的气体,对大气臭氧层的耗损潜能值(ODP)为零,是卤代烷1211、130 -
手提式干粉灭火器
手提式干粉灭火器适灭火时,可手提或肩扛灭火器快速奔赴火场,在距燃烧处5米左右,放下灭火器。如在室外,应选择在上风方向喷射。使用的干粉灭火器若是外挂式储压式的,操作者应一手紧握喷枪、另一手提起储气瓶上的


