GB/T 2407-2008 塑料 硬质塑料小试样与炽热棒接触时燃烧特性的测定
- 发表时间:2022-11-23
- 来源:共立欧宝网页版登录入口
- 人气:
1 范围
本标准规定了硬质塑料小试样同炽热棒接触时燃烧性能的测定方法。
2 规范性引用文件
下列文件中的条款通过本标准的引用而成为本标准的条款。凡是注日期的引用文件,其随后所有的修改单(不包括勘误的内容)或修订版均不适用于本标准,然而,鼓励根据本标准达成协议的各方研究是否可使用这些文件的最新版本。凡是不注日期的引用文件,其最新版本适用于本标准。
GB/T 5471-2008 塑料 热固性塑料试样的压塑(ISO 295:2004,IDT)
GB/T 9352-2008 塑料 热塑性塑料材料试样的压塑(ISO 293:2004,IDT)
GB/T 17037.1-1997 热塑性塑料材料注塑试样的制备第1部分:一般原理及多用途试样和长条试样的制备(ISO 294-1:1996,IDT)
ISO 2818:1994 塑料 机械加工法制备试样
3 原理
将试样一端水平地夹持,使试样自由端与加热到955℃±15℃的炽热棒接触规定时间后,评定试样的燃烧特性。
4 试验意义
本标准不适用于评定使用中可能发生的着火危险性。
在本标准所述条件下对材料所做的试验,对比较各种材料的燃烧特性、检验加工工艺,以及作为材料使用前或使用过程中燃烧性能恶化或改变的量度有较大的价值。本试验是为了质量控制和产品评价设计的,对于非本试验所规定的条件下材料的性能并无意义,它并不能预测材料在实际燃烧情况下的性能。
5 仪器
5.1 试验箱
容积约为1m3,带有通风装置及观察窗口。
5.2 试验装置
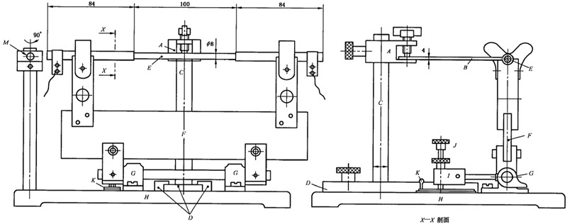
试验装置包括下列部件(见图1)。
5.2.1 夹具
用以固定试样,如图1(X-X剖面)所示。固定在有滑动基座的直立支架上端,可试验不同长度的试样。
5.2.2 点燃源
带有金属触点的炽热棒,直径8mm,长约100mm,可加热到955℃±15℃。
5.2.3 绝缘(陶瓷或石棉)支架
用于固定炽热棒,确保炽热棒在必要时能与试样分离。
单位为毫米

A一夹具;
B-试样;
C、F-支架:
D-滑动基座;
E-炽热棒;
G-轴承;
H-基板;
I一平衡器;
J一制动螺丝;
K-转动板;
M一定位棒。
5.2.4 平衡器
使炽热棒与试样端点接触时施加约0.3N的力。
5.2.5 制动螺丝
在试样烧损约5mm之前,炽热棒能一直保持与试样接触。
5.2.6 定位棒
直径8mm,长150mm,代替炽热棒调整试样的位置。
5.3 检验炽热棒温度的器具
秒表。
6 试样
试样长120mm~130mm,宽10mm±0.2mm,厚4mm±0.2mm。试样表面应平整光滑,无气泡、飞边、毛刺等缺陷。每组试验5个试样。
每个试样应在距其被烧端95mm处划一标线。试样可按GB/T 5471-2008、GB/T 9352-2008、GB/T 17037.1-1997和ISO 2818:1994所述方法以压制、注塑或浇铸模塑而成,或由模塑件、板材、管材或棒材机械加工而成。
除非另有规定或商定,试样可不进行状态调节。
7 操作
7.1 安装试样
将装有炽热棒的支架下倾离开正常位置,定位棒转到试验时炽热棒所在的位置,安装试样,使夹具和试样标线间的距离约为10mm,调节夹具和直立架,使试样前端与定位棒接触。
7.2 点燃
将炽热棒加热到955℃±15℃,并保持恒定,使炽热棒和试样前端接触3min后离开试样。用秒表记录燃烧时间t,以s表示。
燃烧时间从火焰出现开始到火焰熄灭或火焰到达95mm标线止。
7.3 试验终止条件
7.3.1 如果无可见火焰,则在炽热棒移开30s后终止试验。
7.3.2 如果火焰在到达95mm标线前熄灭,则在炽热棒离开30s后终止试验。
7.3.3 如果火焰到达95mm标线,则终止试验并熄灭火焰。
7.4 测量
试验终止后,测量试样标线到烧损痕迹之间最小的未破坏长度,并记录测量的未破坏长度最小值p,以mm表示。
将标线到烧损痕迹的最近距离作为未破坏长度。烧损痕迹包括完全和部分烧毁、烧焦和脆化的区域,不包括熏黑、玷污、变形或变色的区域,也不包括材料离开了热源后收缩或熔融的区域。
8 结果表示
计算
——五个试样的平均燃烧时间t,单位为秒(s);
——五个试样的平均破坏长度L,单位为毫米(mm)。
对于单个试样按式(1)计算:
以上为标准部分内容,如需看标准全文,请到相关授权网站购买标准正版。
- 2023-08-22欧宝网页版登录入口维修保养记录
- 2023-08-22欧宝网页版登录入口设施维修维护
- 2023-08-19欧宝网页版登录入口水池维修
- 2023-08-19欧宝网页版登录入口水炮维修
- 2023-08-19欧宝网页版登录入口线路维修
- 2023-08-19欧宝网页版登录入口维保服务系统
- 2023-08-19欧宝网页版登录入口主机维修维保大全
- 2023-08-19欧宝网页版登录入口维保作用
- 2023-08-18欧宝网页版登录入口维保工作联系单
- 2023-08-18欧宝网页版登录入口维保每年都要做吗
- 2023-08-18 欧宝网页版登录入口维保技术服务
- 2023-08-18欧宝网页版登录入口主板维修
- 2023-08-18欧宝网页版登录入口维保软件
- 2023-08-18欧宝网页版登录入口维保规章制度
- 2023-08-17欧宝网页版登录入口检测和维保
- 2023-08-17欧宝网页版登录入口维保检查
-
IG541混合气体灭火系统
IG541混合气体灭火系统:IG-541灭火系统采用的IG-541混合气体灭火剂是由大气层中的氮气(N2)、氩气(Ar)和二氧化碳(CO2)三种气体分别以52%、40%、8%的比例混合而成的一种灭火剂 -
二氧化碳气体灭火系统
二氧化碳气体灭火系统:二氧化碳气体灭火系统由瓶架、灭火剂瓶组、泄漏检测装置、容器阀、金属软管、单向阀(灭火剂管)、集流管、安全泄漏装置、选择阀、信号反馈装置、灭火剂输送管、喷嘴、驱动气体瓶组、电磁驱动 -
七氟丙烷灭火系统
七氟丙烷(HFC—227ea)灭火系统是一种高效能的灭火设备,其灭火剂HFC—ea是一种无色、无味、低毒性、绝缘性好、无二次污染的气体,对大气臭氧层的耗损潜能值(ODP)为零,是卤代烷1211、130 -
手提式干粉灭火器
手提式干粉灭火器适灭火时,可手提或肩扛灭火器快速奔赴火场,在距燃烧处5米左右,放下灭火器。如在室外,应选择在上风方向喷射。使用的干粉灭火器若是外挂式储压式的,操作者应一手紧握喷枪、另一手提起储气瓶上的


