GB/T 25206.2-2010 复合夹芯板建筑体燃烧性能试验 第2部分:大室法
- 发表时间:2022-11-23
- 来源:共立欧宝网页版登录入口
- 人气:
1 范围
GB/T 25206的本部分规定了用于评价复合夹芯板建筑体燃烧性能的试验方法。通过模拟室内火灾条件,在建筑房间角落处,用特定火焰直接作用于制品来评价建筑体复合夹芯板表面或内部的火焰传播特性。本试验不用作对制品耐火性能的评估。
本部分规定了复合夹芯板建筑体可采用自支撑和框架支撑等结构,但是只适用于对建筑的墙、吊顶或屋面结构进行测试。
2 规范性引用文件
下列文件中的条款通过GB/T 25206的本部分的引用而成为本部分的条款。凡是注日期的引用文件,其随后所有的修改单(不包括勘误的内容)或修订版均不适用于本部分,然而,鼓励根据本部分达成协议的各方研究是否可使用这些文件的最新版本。凡是不注日期的引用文件,其最新版本适用于本部分。
ISO 13943 欧宝网页版登录入口安全词汇
IEC 60584-2 热电偶 第2部分:允差
3 术语和定义
ISO 13943中确立的以及下列术语和定义适用于GB/T 25206的本部分。
3.1
复合材料 composite
由两种或两种以上单一材料组合而成的复合物,如表面有涂层的材料或层压材料。
3.2
受火面 exposed surface
制品与试验的热条件邻近的表面。
3.3
制品 product
材料、复合材料或其组件。
3.4
质量恒定 constant mass
当间隔24h的两次连续称量偏差不超过试样质量的0.1%或0.1g(取两者的较大值)时试样的状态。
3.5
表面制品 surface product
建筑中的墙体、吊顶、屋面的任何暴露表面。
3.6
绝热复合夹芯板 insulating sandwichpanel
由三层或多层材料复合而成的多层制品。
注:中间一层为绝热材料,如矿棉、玻璃棉、塑料纤维或天然材料,两面为有保护作用的面材。面材可选择不同的材料,可以是平板或者异型材定,应用最广泛的是涂层钢板。根据应用及其性能要求,复合材料通过特定的安装连接和支撑可以由单一结构变成复杂的复合组件。
3.7
试样 specimen
代表最终结构的组件。
4 原理
本试验规定了在复合夹芯板建筑内部角落处,通过火焰的直接作用来评价复合夹芯板建筑体的燃烧性能的试验方法。由于可燃气体、复合夹芯板组件的脱落碎片或熔滴物的影响,可出现不同的火焰传播类型,火焰可在夹芯板芯材中传播,也可在表面或接缝处传播。本试验可评价下列火灾危险性参数:
——火灾从发生发展到轰然,建筑体所做的贡献;
——室内火灾传播至外部、其他隔间或相邻建筑的潜在危险性;
——结构倒塌的可能性;
试验房间内部的火灾烟气的发展。
5 结构类型
本试验规定了用以下两种类型来代表实际使用中的结构和材料:
a) 框架支撑结构
复合夹芯板建筑体以机械方式固定在框架结构(通常为钢制)的外部或内部(在板的厚度方向),吊顶或屋面可按传统方式安装或使用复合夹芯板,常见的例子是工业建筑的外部覆层结构。大多数情况下,这种复合夹芯板组件用于建筑的外部墙体、屋面或同时用于两者中。
b) 自支撑结构
由复合夹芯板组件组成一个不依靠其他任何框架结构而能保持稳定性的房间或封闭空间(如建筑内的冷冻室、食物存储室、无尘室)。通常对于建筑内部的这类结构,它的吊顶可由上部部件来固定。
6 试样
试样应满足试验所要求的数量,所有试样应具有实际使用中结构和材料的代表性,所有试样的拼接缝、安装固定等结构细节都应按实际使用情况进行设置和体现。如果复合夹芯板在实际使用中有内框架或外框架,试验时应体现这种安装结构。
试样在结构安装中应符合此结构的质量要求。
如果在实际使用中,吊顶板和墙板不同,试验时应采用实际使用的墙板与吊顶的组合来进行试验。如果复合夹芯板组件在实际使用时有装饰涂层或薄膜面层,则应在试样上体现出来。
7 试验房间设计和建造
7.1 本试验规定了复合夹芯板建筑体燃烧性能的评价方法,复合夹芯板组件的尺寸和结构应与实际使用情况相一致。按照实际使用中制品的拼接和安装方法对其进行评估,如果支撑件是结构的一部分,则试验时在特定位置要使用此支撑件。如果板材是自支撑,为安全起见,应采用非连接的外部框架。
7.2 根据实际使用情况,按第6章的要求用复合夹芯板试样建造一个实体房间(见图1)进行试验。试验房间由四面垂直的墙和吊顶组成,建造在硬质的不燃地面上,房间的内部空间尺寸如下。
长:(4.8±0.05)m。
宽:(4.8±0.05)m。
高:(4.0±0.05)m。
7.3 房间的正面应设置一个门洞,其他墙上无任何通风开口,门洞大小如下。
宽:(4.8±0.05)m。
高:(2.8±0.05)m。
7.4 试验房间可建造在室内或室外。
7.5 试验前生产商应提供不同构件的整体布局图和结构详图,包括样品的拼接和任何框架连接的详细要求。
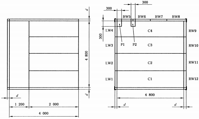
图2和图3是一个安装了内支撑框架的复合夹芯板建筑体的示意图。
注:样品数量和厚度根据试样类型可与示例所要求的不同,另外,支撑架的型号也应根据实际的安装方式来确定。
单位为毫米

a)等角视图

b)燃烧器位置
C——吊顶板;
d——板材厚度;
P1——角落处燃烧器位置1;
P2——接缝处燃烧器位置2;
LW——左墙板;
BW——背墙板;
RW——右墙板;
FW-L——前墙过梁板。
以上为标准部分内容,如需看标准全文,请到相关授权网站购买标准正版。
- 2023-08-22欧宝网页版登录入口维修保养记录
- 2023-08-22欧宝网页版登录入口设施维修维护
- 2023-08-19欧宝网页版登录入口水池维修
- 2023-08-19欧宝网页版登录入口水炮维修
- 2023-08-19欧宝网页版登录入口线路维修
- 2023-08-19欧宝网页版登录入口维保服务系统
- 2023-08-19欧宝网页版登录入口主机维修维保大全
- 2023-08-19欧宝网页版登录入口维保作用
- 2023-08-18欧宝网页版登录入口维保工作联系单
- 2023-08-18欧宝网页版登录入口维保每年都要做吗
- 2023-08-18 欧宝网页版登录入口维保技术服务
- 2023-08-18欧宝网页版登录入口主板维修
- 2023-08-18欧宝网页版登录入口维保软件
- 2023-08-18欧宝网页版登录入口维保规章制度
- 2023-08-17欧宝网页版登录入口检测和维保
- 2023-08-17欧宝网页版登录入口维保检查
-
IG541混合气体灭火系统
IG541混合气体灭火系统:IG-541灭火系统采用的IG-541混合气体灭火剂是由大气层中的氮气(N2)、氩气(Ar)和二氧化碳(CO2)三种气体分别以52%、40%、8%的比例混合而成的一种灭火剂 -
二氧化碳气体灭火系统
二氧化碳气体灭火系统:二氧化碳气体灭火系统由瓶架、灭火剂瓶组、泄漏检测装置、容器阀、金属软管、单向阀(灭火剂管)、集流管、安全泄漏装置、选择阀、信号反馈装置、灭火剂输送管、喷嘴、驱动气体瓶组、电磁驱动 -
七氟丙烷灭火系统
七氟丙烷(HFC—227ea)灭火系统是一种高效能的灭火设备,其灭火剂HFC—ea是一种无色、无味、低毒性、绝缘性好、无二次污染的气体,对大气臭氧层的耗损潜能值(ODP)为零,是卤代烷1211、130 -
手提式干粉灭火器
手提式干粉灭火器适灭火时,可手提或肩扛灭火器快速奔赴火场,在距燃烧处5米左右,放下灭火器。如在室外,应选择在上风方向喷射。使用的干粉灭火器若是外挂式储压式的,操作者应一手紧握喷枪、另一手提起储气瓶上的


