GB 19880-2005 手动火灾报警按钮
- 发表时间:2022-11-12
- 来源:共立欧宝网页版登录入口
- 人气:
1 范围
本标准规定了手动火灾报警按钮的一般要求、要求与试验方法、检验规则和标志。
本标准适用于一般工业与民用建筑中安装使用的手动火灾报警按钮,其他具有特殊功能的火灾报警启动按钮亦应执行本标准。
2 规范性引用文件
下列文件中的条款通过本标准的引用而成为本标准的条款。凡是注日期的引用文件,其随后所有的修改单(不包括勘误的内容)或修订版均不适用于本标准,然而,鼓励根据本标准达成协议的各方研究是否可使用这些文件的最新版本。凡是不注日期的引用文件,其最新版本适用于本标准。
GB 9969.1 工业产品使用说明书 总则
GB 12978 欧宝网页版登录入口电子产品检验规则
GB 16838 欧宝网页版登录入口电子产品环境试验方法及严酷等级
GB/T 17626.2-1998 电磁兼容 试验和测量技术 静电放电抗扰度试验(idt IEC 61000-4-2:1995)
GB/T 17626.3-1998 电磁兼容 试验和测量技术 射频电磁场辐射抗扰度试验(idt IEC61000-4-3:1995)
GB/T 17626.4-1998 电磁兼容 试验和测量技术 电快速瞬变脉冲群抗扰度试验(idt IEC61000-4-4:1995)
GB/T 17626.5-1999 电磁兼容 试验和测量技术 浪涌(冲击)抗扰度试验(idt IEC 61000-4-5:1995)
GB/T 17626.6-1998 电磁兼容 试验和测量技术 射频场感应的传导骚扰抗扰度(idt IEC61000-4-6:1996)
3 一般要求
3.1 总则
手动火灾报警按钮(以下称报警按钮)若要符合本标准,应首先满足本章要求,然后按第4章规定进行试验,并满足试验要求。
3.2 使用说明书
报警按钮应有相应的中文说明书。说明书应满足GB 9969.1的要求。
3.3 启动零件
3.3.1 正常监视状态
报警按钮的正常监视状态可通过其前面板外观清晰识别,启动零件不应破碎、变形或移位。
3.3.2 报警状态
报警按钮从正常监视状态进入报警状态可以通过如下操作完成,并应能从前面板外观变化识别且与正常监视状态有明显区别:
a)击碎启动零件;
b)使启动零件移位。
3.4 报警确认灯
报警按钮应设红色报警确认灯,报警按钮启动零件动作,报警确认灯应点亮,并保持至报警状态被复位。如通过报警确认灯显示报警按钮其他工作状态,被显示状态应与火灾报警指示时的状态有明显区别。确认灯点亮时在其正前方2m处,光照度不超过500lx的环境条件下,应清晰可见。
3.5 复位
报警按钮动作后应仅能使用工具通过下述方法进行复位:
a)对启动零件不可重复使用的,更换新的启动零件;
b)对启动零件可重复使用的,复位启动零件。
3.6 测试手段
启动零件不可重复使用的报警按钮应有专门测试手段,在不击碎启动零件情况下进行模拟报警及复位测试。
3.7 结构设计
3.7.1 安全性
操作启动零件时不应对操作者产生伤害。
报警按钮外壳的边角应钝化,减少使人受伤的可能性。
3.7.2 形状、尺寸和颜色
3.7.2.1 形状
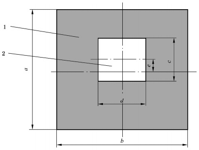
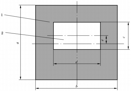
报警按钮的前面板宜采用图1或图2所示形状及表1列出的尺寸。

1-前面板;
2-操作面板;
a~e见表1。
图1 方形启动零件报警按钮形状
报警按钮的操作面板宜为正方形(见图1)或长方形(见图2)及符合表1和下述要求:
a)在前面板垂直中心线的正中间;
b)可以设计成允许与前面板水平中心线有垂直偏差。
报警按钮的操作面板应与前面板在同一水平面或嵌入前面板里,但不能凸出前面板外。

1-前面板;
2-操作面板;
a~e见表1。
图2 长方形启动零件报警按钮形状
表1 报警按钮的外形尺寸
尺寸 | 图1或图2 中的符号 | 报警按钮 | |
正方形操作面板 | 长方形操作面板 | ||
前面板高度 | a | 85mm≤a≤135mm | 85mm≤a≤135mm |
前面板宽度 | b | 85mm≤b≤135mm | 85mm≤b≤135mm |
前面板宽度与高度之比 | b/a | 0.95≤b/a≤1.05 | 0.95≤b/a≤1.05 |
操作面板高度 | c | 0.5a±5mm | 0.4a±5mm |
操作面板宽度 | d | 0.5a±5mm | 0.8a±5mm |
操作面板宽度与高度之比 | d/c | 0.95≤d/c≤1.05 | 1.9≤d/c≤2.1 |
操作面板最大偏移量 | e | ±0.1a | ±0.1a |
3.7.2.2 尺寸
报警按钮前面板覆盖面积(含操作面板)应大于6400mm2,操作面板面积应大于1000mm2。前面板和操作面板尺寸宜在表1规定的范围内。
报警按钮按制造商规定的安装方式安装后,前面板应与安装面平行,且凸出安装面至少15mm。
3.7.2.3 颜色
报警按钮按制造商规定的安装方式安装后,除下述部位外,可视的表面颜色应为红色:
a)操作面板;
b)3.7.3.2中规定的符号和文字。
操作面板的颜色除3.7.3.3中指定的符号和文字外宜为白色。
3.7.3 符号和文字
3.7.3.1 总则
报警按钮应采用适当的符号和文字进行标识。
3.7.3.2 前面板上符号和文字
3.7.3.2.1 宜在报警按钮前面板的上部居中标注如图3a)所示的图形符号或起同等作用的文字,符号和文字应为白色。
3.7.3.2.2 除3.7.3.2.1中规定,其他符号、文字均应在前面板水平中心线下方。非红色标识部分总面积不应超过前面板面积的5%。

图3 报警按钮标识
3.7.3.3 操作面板上符号和文字
3.7.3.3.1 报警按钮的操作面板上应标注图3b)所示的图形符号。图形标识可附有补充性文字(如:按下报警)。符号和文字宜为黑色,其总面积不应超过操作面板总面积的10%。
3.7.3.3.2 其他符号、文字不应影响3.7.3.3.1中规定的图形标识,且限制在操作面板上部和/或下部25%区域内。除3.7.3.3.1中规定的图形标识,操作面板上与操作面板颜色不同的标识总面积不应超过操作面板面积的5%。
3.7.4 使用环境
制造商应规定报警按钮的使用环境(户内或户外)。
3.7.5 辅助接点
报警按钮如具有其他启动或辅助功能,应至少有一常开或常闭接点,接点容量应在使用说明书中说明。
4 要求与试验方法
4.1 总则
4.1.1 试验环境条件
除在有关条文中说明外,则各项试验均应在下述正常大气条件下进行:
温度:15℃~35℃;
湿度:25%RH~75%RH;
大气压力:86 kPa~106 kPa。
4.1.2 试验正常监视状态
如试验时要求试样处于正常监视状态,应将试样与制造商提供的电源和监视设备连接。
4.1.3 试样安装
试验时,应按制造商规定的正常安装方式安装。
4.1.4 容差
如在有关条文中没有说明时,则各项试验数据的容差均为±5%。环境条件参数偏差应符合GB 16838要求。
4.1.5 响应时间
试样启动零件动作后,电源和监视设备应在10s内发出火灾报警信号。
4.1.6 试样
试样数量应符合下述要求:
a)户内型报警按钮为12只;
以上为标准部分内容,如需看标准全文,请到相关授权网站购买标准正版。
- 2023-08-22欧宝网页版登录入口维修保养记录
- 2023-08-22欧宝网页版登录入口设施维修维护
- 2023-08-19欧宝网页版登录入口水池维修
- 2023-08-19欧宝网页版登录入口水炮维修
- 2023-08-19欧宝网页版登录入口线路维修
- 2023-08-19欧宝网页版登录入口维保服务系统
- 2023-08-19欧宝网页版登录入口主机维修维保大全
- 2023-08-19欧宝网页版登录入口维保作用
- 2023-08-18欧宝网页版登录入口维保工作联系单
- 2023-08-18欧宝网页版登录入口维保每年都要做吗
- 2023-08-18 欧宝网页版登录入口维保技术服务
- 2023-08-18欧宝网页版登录入口主板维修
- 2023-08-18欧宝网页版登录入口维保软件
- 2023-08-18欧宝网页版登录入口维保规章制度
- 2023-08-17欧宝网页版登录入口检测和维保
- 2023-08-17欧宝网页版登录入口维保检查
-
IG541混合气体灭火系统
IG541混合气体灭火系统:IG-541灭火系统采用的IG-541混合气体灭火剂是由大气层中的氮气(N2)、氩气(Ar)和二氧化碳(CO2)三种气体分别以52%、40%、8%的比例混合而成的一种灭火剂 -
二氧化碳气体灭火系统
二氧化碳气体灭火系统:二氧化碳气体灭火系统由瓶架、灭火剂瓶组、泄漏检测装置、容器阀、金属软管、单向阀(灭火剂管)、集流管、安全泄漏装置、选择阀、信号反馈装置、灭火剂输送管、喷嘴、驱动气体瓶组、电磁驱动 -
七氟丙烷灭火系统
七氟丙烷(HFC—227ea)灭火系统是一种高效能的灭火设备,其灭火剂HFC—ea是一种无色、无味、低毒性、绝缘性好、无二次污染的气体,对大气臭氧层的耗损潜能值(ODP)为零,是卤代烷1211、130 -
手提式干粉灭火器
手提式干粉灭火器适灭火时,可手提或肩扛灭火器快速奔赴火场,在距燃烧处5米左右,放下灭火器。如在室外,应选择在上风方向喷射。使用的干粉灭火器若是外挂式储压式的,操作者应一手紧握喷枪、另一手提起储气瓶上的


