MT/T 327-2011 天轮
- 发表时间:2022-10-12
- 来源:共立欧宝网页版登录入口
- 人气:
1 范围
本标准规定了天轮的分类、技术要求、试验方法和检验规则及标志、包装、运输、贮存。
本标准适用于煤矿立井单绳提升、斜井及凿井提升用的天轮。
2 规范性引用文件
下列文件中的条款通过本标准的引用而成为本标准的条款。凡是注日期的引用文件,其随后所有的修改单(不包括勘误的内容)或修订版均不适用于本标准,然而,鼓励根据本标准达成协议的各方研究是否可使用这些文件的最新版本。凡是不注日期的引用文件,其最新版本适用于本标准。
GB/T 116 铆钉技术条件
GB/T 699-1999 优质碳素结构钢
GB/T 711-2008 优质碳素结构钢热轧厚钢板和钢带
GB/T 1184-1996 形状和位置公差 未注公差值(ISO 2768-2:1989,EQV)
GB/T 1804-2000 一般公差 未注公差的线性和角度尺寸的公差(ISO 2768-1:1989,EQV)
GB/T 11345-1989 钢焊缝手工超声波探伤方法和探伤结果分级
GB/T 11352-1989 一般工程用铸造碳钢件(ISO 3755:1991,NEQ)
JB 1581-1996 汽轮机、汽轮发电机转子和主轴锻件 超声波探伤方法
MT/T 154.1 煤矿机电产品型号编制方法 第1部分:导则
《煤矿安全规程》国家安全生产监督管理总局(2006年)。
3 产品分类
3.1 型式
3.1.1 天轮按提升方式和用途分为下列三种型式:
a) 立井天轮;
b)凿井天轮;
c) 游动天轮。
注:凿井天轮亦用于暗立井提升及斜井提升。
3.1.2 天轮轮体采用整体铸钢结构、焊接结构及模压钢板轮缘结构三种型式,铸钢结构轮体直径小于等于3 000mm,模压结构轮体直径大于等于3 500mm。
3.1.3 轴承型式均采用滚动轴承。
3.2 基本参数与尺寸
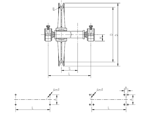
3.2.1 游动天轮的基本参数与尺寸应符合图1和表1的规定。
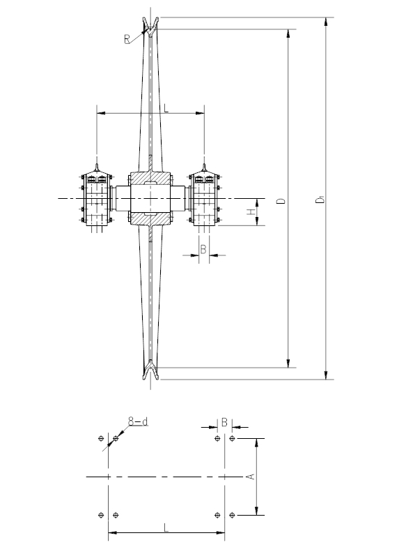
3.2.2 立井天轮的基本参数与尺寸应符合图2、图3、图4和表2的规定。
3.2.3 凿井天轮的基本参数与尺寸应符合图2、图3和表3的规定。

图1 游动天轮
表1 游动天轮基本参数与尺寸
序 号 | 型号 | 绳槽底 圆直径 D | 绳槽 半径 R | 最大游 动距离 S | 适用钢丝绳直 径 | 允许钢丝 破断拉力 总 和 | 主要尺寸 | 地脚螺 栓数量 n | 转动 惯量 | 质量 | |||||
L | H | D1 | A | B | d | ||||||||||
mm | kN | mm | 个 | kg·m2 | kg | ||||||||||
1 | TDG 600/9/300 | 600 | 9 | 300 | 14~16 | 160 | 670 | 95 | 690 | 260 | — | 18 | 4 | 4 | 130 |
2 | TDG 800/11/700 | 800 | 11 | 700 | >16~20 | 252 | 1 100 | 95 | 920 | 260 | — | 18 | 4 | 13 | 220 |
3 | TDG 1 000/13.5/800 | 1 000 | 13.5 | 800 | >20~24.5 | 382 | 1 250 | 130 | 1 140 | 350 | — | 26 | 4 | 31 | 425 |
4 | TDG 1 400/16/740 | 1 400 | 16 | 740 | >24.5~30 | 597 | 1 300 | 140 | 1 580 | 340 | 60 | 22 | 8 | 105 | 675 |
5 | TDG 1 400/16/1 350 | 1 350 | 1 900 | 850 | |||||||||||

图2 铸钢天轮
以上为标准部分内容,如需看标准全文,请到相关授权网站购买标准正版。
- 2023-08-22欧宝网页版登录入口维修保养记录
- 2023-08-22欧宝网页版登录入口设施维修维护
- 2023-08-19欧宝网页版登录入口水池维修
- 2023-08-19欧宝网页版登录入口水炮维修
- 2023-08-19欧宝网页版登录入口线路维修
- 2023-08-19欧宝网页版登录入口维保服务系统
- 2023-08-19欧宝网页版登录入口主机维修维保大全
- 2023-08-19欧宝网页版登录入口维保作用
- 2023-08-18欧宝网页版登录入口维保工作联系单
- 2023-08-18欧宝网页版登录入口维保每年都要做吗
- 2023-08-18 欧宝网页版登录入口维保技术服务
- 2023-08-18欧宝网页版登录入口主板维修
- 2023-08-18欧宝网页版登录入口维保软件
- 2023-08-18欧宝网页版登录入口维保规章制度
- 2023-08-17欧宝网页版登录入口检测和维保
- 2023-08-17欧宝网页版登录入口维保检查
-
IG541混合气体灭火系统
IG541混合气体灭火系统:IG-541灭火系统采用的IG-541混合气体灭火剂是由大气层中的氮气(N2)、氩气(Ar)和二氧化碳(CO2)三种气体分别以52%、40%、8%的比例混合而成的一种灭火剂 -
二氧化碳气体灭火系统
二氧化碳气体灭火系统:二氧化碳气体灭火系统由瓶架、灭火剂瓶组、泄漏检测装置、容器阀、金属软管、单向阀(灭火剂管)、集流管、安全泄漏装置、选择阀、信号反馈装置、灭火剂输送管、喷嘴、驱动气体瓶组、电磁驱动 -
七氟丙烷灭火系统
七氟丙烷(HFC—227ea)灭火系统是一种高效能的灭火设备,其灭火剂HFC—ea是一种无色、无味、低毒性、绝缘性好、无二次污染的气体,对大气臭氧层的耗损潜能值(ODP)为零,是卤代烷1211、130 -
手提式干粉灭火器
手提式干粉灭火器适灭火时,可手提或肩扛灭火器快速奔赴火场,在距燃烧处5米左右,放下灭火器。如在室外,应选择在上风方向喷射。使用的干粉灭火器若是外挂式储压式的,操作者应一手紧握喷枪、另一手提起储气瓶上的


