MT 235-2011 立井多绳罐笼 平衡锤
- 发表时间:2022-10-12
- 来源:共立欧宝网页版登录入口
- 人气:
1 范围
本标准规定了立井多绳罐笼平衡锤(以下简称平衡锤)的产品分类、技术要求、试验方法、检验规则、标志、包装、运输和贮存。
本标准适用于立井多绳罐笼配套提升的平衡锤,与其配套的罐笼有1t、1.5t和3t矿车立井多绳罐笼。也适用于立井多绳交通罐笼配套提升的平衡锤。
2 规范性引用文件
下列文件中的条款通过本标准的引用而成为本标准的条款。凡是注日期的引用文件,其随后所有的修改单(不包括勘误的内容)或修订版均不适用于本标准,然而,鼓励根据本标准达成协议的各方研究是否可使用这些文件的最新版本。凡是不注日期的引用文件,其最新版本适用于本标准。
GB/T 27 六角头铰制孔用螺栓 A和B级
GB/T 116 铆钉技术条件
GB/T 699 碳素结构钢
GB/T 700 碳素结构钢(GB/T 700-2006,ISO 630:1995,NEQ)
GB/T 985.1 气焊、焊条电弧焊、气体保护焊和高能束焊的推荐坡口(GB/T 985.1-2008,ISO 9692-1:2003,MOD)
GB/T 1184-1996 形状和位置公差 未注公差值(eqv ISO2768-2:1989)
GB/T 1228 钢结构用高强度大六角头螺栓(GB/T 1228-2006,ISO 7412:1984,NEQ)
GB/T 1591 低合金高强度结构钢
GB/T 1804-2000 一般公差 未注公差的线性和角度尺寸的公差(eqv ISO 2768-1:1989)
GB/T 3632 钢结构用扭剪型高强度螺栓连接副
GB/T 9286 色漆和清漆 漆膜的划格试验(GB/T 9286-1998,eqv ISO 2409:1992)
GB 50017 钢结构设计规范
JB/T 5000.3-2007 重型机械通用技术条件 第3部分:焊接件
JB/T 5000.10 重型机械通用技术条件 第10部分:装配
JB/T 5000.12-2007 重型机械通用技术条件 第12部分:涂装
MT/T 154.1 煤矿机电产品型号编制方法 第1部分:导则
MT 236 矩形钢罐道 滚轮罐耳
MT 237.3 多绳提升容器 B型钢丝绳悬挂装置 圆尾绳悬挂装置
MT 237.4 多绳提升容器 B型钢丝绳悬挂装置 扁尾绳悬挂装置
MT 684 矿用提升容器重要承载件无损探伤方法与验收规范
《煤矿安全规程》 (国家安全生产监督管理总局)
3 产品分类
3.1 型式
3.1.1 首绳悬挂装置与平衡锤用销轴直接连接,连接孔中心距按多绳摩擦式提升机钢丝绳间距确定。首绳悬挂装置超过平衡锤断面宽度尺寸时应倾斜布置。
3.1.2 尾绳悬挂装置采用MT 237.3、MT 237.4规定的圆尾绳和扁尾绳两种。
3.1.3 平衡锤有绳罐道和矩形钢罐道两种形式。
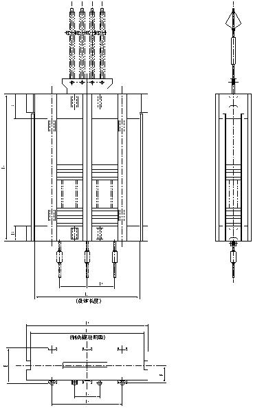
3.1.3.1 使用绳罐道的平衡锤,罐道绳布置在平衡锤的一侧,采用套筒式滑动绳罐耳导向。(见图1)。
3.1.3.2 使用矩形钢罐道的平衡锤,矩形钢罐道布置在平衡锤的两端,采用MT 236规定的滚轮罐耳沿矩形钢罐道导向(见图2)。
3.1.4 平衡锤采用型钢立柱。立柱与各盘体、盘体主要受力杆件之间采用GB/T 1228、GB/T 3632规定的高强螺栓或GB/T 27规定的铰制孔用螺栓联接。
3.1.5 平衡锤过卷时,采用上、下盘制动。制动罐耳均设置在平衡锤的两端。
3.1.6 重锤块为铸铁块。
3.2 分类
平衡锤按运行罐道形式、质量范围及断面尺寸分为5个质量系列,14个品种(见表1)。
3.3 产品型号
3.3.1 平衡锤的型号编制方法应符合MT/T 154.1的规定。
3.3.2 产品型号的组成和排列方式如下:

示例:
运行罐道为绳罐道、名义质量14t、断面尺寸(2500mm×780mm)为A型的立井多绳平衡锤,其型号为:

3.4 基本参数与主要尺寸
3.4.1 平衡锤的基本参数应符合表1的规定。
3.4.2 平衡锤的主要尺寸应符合图1、图2和表2的规定。

图1 PDS系列平衡锤
以上为标准部分内容,如需看标准全文,请到相关授权网站购买标准正版。
- 2023-08-22欧宝网页版登录入口维修保养记录
- 2023-08-22欧宝网页版登录入口设施维修维护
- 2023-08-19欧宝网页版登录入口水池维修
- 2023-08-19欧宝网页版登录入口水炮维修
- 2023-08-19欧宝网页版登录入口线路维修
- 2023-08-19欧宝网页版登录入口维保服务系统
- 2023-08-19欧宝网页版登录入口主机维修维保大全
- 2023-08-19欧宝网页版登录入口维保作用
- 2023-08-18欧宝网页版登录入口维保工作联系单
- 2023-08-18欧宝网页版登录入口维保每年都要做吗
- 2023-08-18 欧宝网页版登录入口维保技术服务
- 2023-08-18欧宝网页版登录入口主板维修
- 2023-08-18欧宝网页版登录入口维保软件
- 2023-08-18欧宝网页版登录入口维保规章制度
- 2023-08-17欧宝网页版登录入口检测和维保
- 2023-08-17欧宝网页版登录入口维保检查
-
IG541混合气体灭火系统
IG541混合气体灭火系统:IG-541灭火系统采用的IG-541混合气体灭火剂是由大气层中的氮气(N2)、氩气(Ar)和二氧化碳(CO2)三种气体分别以52%、40%、8%的比例混合而成的一种灭火剂 -
二氧化碳气体灭火系统
二氧化碳气体灭火系统:二氧化碳气体灭火系统由瓶架、灭火剂瓶组、泄漏检测装置、容器阀、金属软管、单向阀(灭火剂管)、集流管、安全泄漏装置、选择阀、信号反馈装置、灭火剂输送管、喷嘴、驱动气体瓶组、电磁驱动 -
七氟丙烷灭火系统
七氟丙烷(HFC—227ea)灭火系统是一种高效能的灭火设备,其灭火剂HFC—ea是一种无色、无味、低毒性、绝缘性好、无二次污染的气体,对大气臭氧层的耗损潜能值(ODP)为零,是卤代烷1211、130 -
手提式干粉灭火器
手提式干粉灭火器适灭火时,可手提或肩扛灭火器快速奔赴火场,在距燃烧处5米左右,放下灭火器。如在室外,应选择在上风方向喷射。使用的干粉灭火器若是外挂式储压式的,操作者应一手紧握喷枪、另一手提起储气瓶上的


