MT 236-2011 矩形钢罐道 滚轮罐耳
- 发表时间:2022-10-11
- 来源:共立欧宝网页版登录入口
- 人气:
1 范围
本标准规定了矩形钢罐道滚轮罐耳(以下简称滚轮罐耳)的产品分类、技术要求、试验方法、检验规则、标志、包装、运输和贮存。
本标准适用于立井提升容器(箕斗、罐笼、平衡锤)沿矩形钢罐道导向的滚轮罐耳。
2 规范性引用文件
下列文件中的条款通过本标准的引用而成为本标准的条款。凡是注日期的引用文件,其随后所有的修改单(不包括勘误的内容)或修订版均不适用于本标准,然而,鼓励根据本标准达成协议的各方研究是否可使用这些文件的最新版本。凡是不注日期的引用文件,其最新版本适用于本标准。
GB/T 700 碳素结构钢(GB/T 700-2006,ISO 630:1995,NEQ)
GB/T 985.1 气焊、焊条电弧焊、气体保护焊和高能束焊的推荐坡口(GB/T 985.1-2008,ISO 9692-1:2003,MOD)
GB/T 1184-1996 形状和位置公差 未注公差值(eqv ISO 2768-2:1989)
GB/T 1804-2000 一般公差 未注公差的线性和角度尺寸的公差(eqv ISO 2768-1:1989)
GB/T 9286 色漆和清漆 漆膜的划格试验(GB/T 9286-1998,eqv ISO 2409:1992)
GB/T 10111 随机数的产生及其在产品质量抽样检验中的应用程序
JB/T 5000.3-2007 重型机械通用技术条件 第3部分:焊接件
JB/T 5000.10 重型机械通用技术条件 第10部分:装配
JB/T 5000.12-2007 重型机械通用技术条件 第12部分:涂装
MT/T 154.1 煤矿机电产品型号编制方法 第1部分:导则
《煤矿安全规程》 (国家安全生产监督管理总局)
3 产品分类
3.1 型式
3.1.1 滚轮罐耳由单排轮或双排轮滚轮、缓冲装置和底架组成。
3.1.2 滚轮罐耳的缓冲装置采用蝶型弹簧或橡胶弹簧为缓冲元件,或采用弹簧和液压-气压缓冲减振器组合装置。
3.1.3 滚轮的内圈安装滚动轴承。滚轮的外轮材料采用聚氨酯橡胶或橡胶。
3.1.4 滚轮罐耳沿矩形钢罐道导向,通常采用一组3个,在矩形钢罐道的正面使用单排轮或双排轮滚轮罐耳,两侧面使用单排轮滚轮罐耳。
3.2 分类
滚轮罐耳按滚轮直径和列数分为8个品种:
a)单排轮滚轮罐耳 ø200mm,见图1;
b)单排轮滚轮罐耳 ø250mm,见图1;
c)单排轮滚轮罐耳 ø300mm,见图1;
d)单排轮滚轮罐耳 ø350mm,见图1;
e)单排轮滚轮罐耳 ø425mm,见图1;
f)双排轮滚轮罐耳 ø300mm,见图1;
g)双排轮滚轮罐耳 ø350mm,见图1;
h)双排轮滚轮罐耳 ø425mm,见图1。
3.3 产品型号
3.3.1 滚轮罐耳的型号编制方法应符合MT/T 154.1的规定。
3.3.2 产品型号的组成和排列方式如下:

示例:
直径ø350mm,双排轮的滚轮罐耳,其型号为:

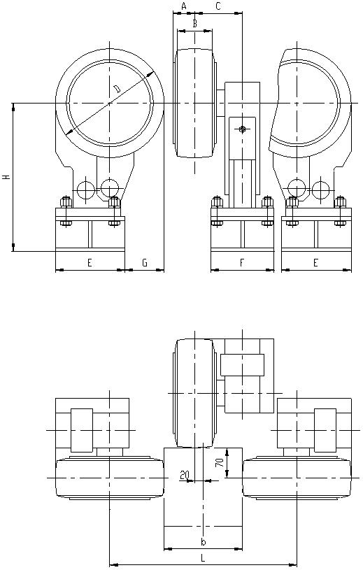
3.4 基本参数与主要尺寸
3.4.1 滚轮灌耳的基本参数应符合表1的规定。
3.4.2 滚轮灌耳的主要尺寸应符合图1、图2和表2的规定。

图1 单排轮滚轮罐耳
以上为标准部分内容,如需看标准全文,请到相关授权网站购买标准正版。
- 2023-08-22欧宝网页版登录入口维修保养记录
- 2023-08-22欧宝网页版登录入口设施维修维护
- 2023-08-19欧宝网页版登录入口水池维修
- 2023-08-19欧宝网页版登录入口水炮维修
- 2023-08-19欧宝网页版登录入口线路维修
- 2023-08-19欧宝网页版登录入口维保服务系统
- 2023-08-19欧宝网页版登录入口主机维修维保大全
- 2023-08-19欧宝网页版登录入口维保作用
- 2023-08-18欧宝网页版登录入口维保工作联系单
- 2023-08-18欧宝网页版登录入口维保每年都要做吗
- 2023-08-18 欧宝网页版登录入口维保技术服务
- 2023-08-18欧宝网页版登录入口主板维修
- 2023-08-18欧宝网页版登录入口维保软件
- 2023-08-18欧宝网页版登录入口维保规章制度
- 2023-08-17欧宝网页版登录入口检测和维保
- 2023-08-17欧宝网页版登录入口维保检查
-
IG541混合气体灭火系统
IG541混合气体灭火系统:IG-541灭火系统采用的IG-541混合气体灭火剂是由大气层中的氮气(N2)、氩气(Ar)和二氧化碳(CO2)三种气体分别以52%、40%、8%的比例混合而成的一种灭火剂 -
二氧化碳气体灭火系统
二氧化碳气体灭火系统:二氧化碳气体灭火系统由瓶架、灭火剂瓶组、泄漏检测装置、容器阀、金属软管、单向阀(灭火剂管)、集流管、安全泄漏装置、选择阀、信号反馈装置、灭火剂输送管、喷嘴、驱动气体瓶组、电磁驱动 -
七氟丙烷灭火系统
七氟丙烷(HFC—227ea)灭火系统是一种高效能的灭火设备,其灭火剂HFC—ea是一种无色、无味、低毒性、绝缘性好、无二次污染的气体,对大气臭氧层的耗损潜能值(ODP)为零,是卤代烷1211、130 -
手提式干粉灭火器
手提式干粉灭火器适灭火时,可手提或肩扛灭火器快速奔赴火场,在距燃烧处5米左右,放下灭火器。如在室外,应选择在上风方向喷射。使用的干粉灭火器若是外挂式储压式的,操作者应一手紧握喷枪、另一手提起储气瓶上的


