AQ/T 4118-2011 烟花爆竹 烟火药猛度测定方法
- 发表时间:2022-09-15
- 来源:共立欧宝网页版登录入口
- 人气:
1 范围
本标准规定了烟花爆竹用烟火药猛度测定的仪器和材料、测定准备、爆炸压缩铅柱、测量压缩后铅柱高度和烟火药猛度的计算。
本标准适用于烟花爆竹用烟火药猛度的测定。
2 规范性引用文件
下列文件对于本文件的应用是必不可少的。凡是注日期的引用文件,仅注日期的版本适用于本文 件。凡是不注日期的引用文件,其最新版本(包括所有的修改单)适用于本文件。
GB/T 699 优质碳素结构钢
GB/T 7968 纸袋纸
GB 8031 工业电雷管
GJB 338A 梯恩梯规范
3 术语和定义
下列术语和定义适用于本标准。
3.1
烟火药猛度 pyrotechnics brisance
烟火药猛度是指烟火药爆炸时粉碎和破坏与其接触(或接近)的物体的能力。
3.2
钢靠尺steel rule
钢靠尺是指为准确安装爆炸压缩铅柱装置,在钢片底面上画中心圆圈的模具。
4 测定原理
在规定参量(质量、密度和几何尺寸)的条件下,烟火药爆炸时对铅柱进行压缩,以压缩值来衡量烟火药的猛度。烟火药在不具备爆炸条件时的猛度值为0。
5 仪器和材料
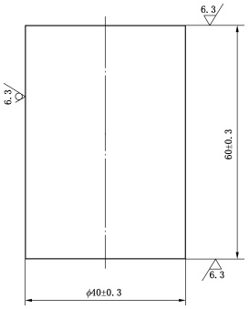
5.1 铅柱:选取99.99%的铅锭在400℃±10℃下熔化后一次铸成,经过24 h自然冷却后将其加工成如图1所示形状。每批按附录A标定合格后方可使用。
单位为毫米

图1 铅柱
5.2 纸袋纸:符合GB/T 7968要求,选用80 g/m2的纸袋纸。
5.3 带孔圆纸板:外径40 mm±0.2 mm,中心孔径7.5 mm±0.1 mm(中心孔径应按8号瞬发金属壳 电雷管外径调整,以保证雷管刚好能穿过中心孔),薄纸板厚度1.5 mm〜2.0 mm,厚纸板厚度4.5 mm〜 6.0 mm。
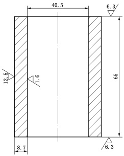
5.4 钢套:符合GB/T 699要求,选用硬度为HB150〜200的优质碳素结构钢,加工成图2形状。
单位为毫米

图2 钢套
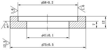
5.5 钢片:符合GB/T 699要求,选用硬度为HB150-200的优质碳素结构钢,加工成图3形状。
单位为毫米

图3 钢片
5.6 钢底座:符合GB/T 699要求,选用硬度为HB150〜200的优质碳素结构钢,表面粗糙度Ra为6.3 μm,厚度220 mm,方形底座最短边长>100 mm(圆形底座直径>100 mm)。
5.7 电雷管:符合GB 8031要求,选用8号瞬发金属壳电雷管。
5.8 起爆器。
5.9 钢靠尺:加工成图4形状。
单位为毫米

图4 钢靠尺
6 测定准备
6.1 加工纸筒
将纸袋纸裁成长150 mm、宽65 mm的长方形,粘成内径40 mm的圆筒。
另取一张纸袋纸,剪成直径为60 mm的圆纸片,并沿圆周边剪开,剪到直径为40 mm的圆周处(形似锯齿状),再将剪开的边向上折,形成筒底,并将接缝粘牢。
6.2 纸筒插入钢套中
将纸筒送入钢套中,纸筒底部与钢套一端齐平。
6.3 钢片上画定位圆线
将钢片放在钢靠尺内,钢靠尺平放在桌面上(钢片在下面),用笔绕着钢靠尺的内径在钢片上画圆线,画好后取出钢片备用。
以上为标准部分内容,如需看标准全文,请到相关授权网站购买标准正版。
- 2023-08-22欧宝网页版登录入口维修保养记录
- 2023-08-22欧宝网页版登录入口设施维修维护
- 2023-08-19欧宝网页版登录入口水池维修
- 2023-08-19欧宝网页版登录入口水炮维修
- 2023-08-19欧宝网页版登录入口线路维修
- 2023-08-19欧宝网页版登录入口维保服务系统
- 2023-08-19欧宝网页版登录入口主机维修维保大全
- 2023-08-19欧宝网页版登录入口维保作用
- 2023-08-18欧宝网页版登录入口维保工作联系单
- 2023-08-18欧宝网页版登录入口维保每年都要做吗
- 2023-08-18 欧宝网页版登录入口维保技术服务
- 2023-08-18欧宝网页版登录入口主板维修
- 2023-08-18欧宝网页版登录入口维保软件
- 2023-08-18欧宝网页版登录入口维保规章制度
- 2023-08-17欧宝网页版登录入口检测和维保
- 2023-08-17欧宝网页版登录入口维保检查
-
IG541混合气体灭火系统
IG541混合气体灭火系统:IG-541灭火系统采用的IG-541混合气体灭火剂是由大气层中的氮气(N2)、氩气(Ar)和二氧化碳(CO2)三种气体分别以52%、40%、8%的比例混合而成的一种灭火剂 -
二氧化碳气体灭火系统
二氧化碳气体灭火系统:二氧化碳气体灭火系统由瓶架、灭火剂瓶组、泄漏检测装置、容器阀、金属软管、单向阀(灭火剂管)、集流管、安全泄漏装置、选择阀、信号反馈装置、灭火剂输送管、喷嘴、驱动气体瓶组、电磁驱动 -
七氟丙烷灭火系统
七氟丙烷(HFC—227ea)灭火系统是一种高效能的灭火设备,其灭火剂HFC—ea是一种无色、无味、低毒性、绝缘性好、无二次污染的气体,对大气臭氧层的耗损潜能值(ODP)为零,是卤代烷1211、130 -
手提式干粉灭火器
手提式干粉灭火器适灭火时,可手提或肩扛灭火器快速奔赴火场,在距燃烧处5米左右,放下灭火器。如在室外,应选择在上风方向喷射。使用的干粉灭火器若是外挂式储压式的,操作者应一手紧握喷枪、另一手提起储气瓶上的


