MT 235-2011 立井多绳罐笼 平衡锤
- 发表时间:2022-08-29
- 来源:共立欧宝网页版登录入口
- 人气:
1 范围
本标准规定了立井多绳罐笼平衡锤(以下简称平衡锤)的产品分类、技术要求、试验方法、检验规则、 标志、包装、运输和贮存。
本标准适用于立井多绳罐笼配套提升的平衡锤,与其配套的罐笼有1 t、1.5 t和3 t矿车立井多绳罐 笼。也适用于立井多绳交通罐笼配套提升的平衡锤。
2 规范性引用文件
下列文件对于本文件的应用是必不可少的。凡是注日期的引用文件,仅注日期的版本适用于本文 件。凡是不注日期的引用文件,其最新版本(包括所有的修改单)适用于本文件。
GB/T 27 六角头铰制孔用螺栓A和B级
GB/T 116 铆钉技术条件
GB/T 699 碳素结构钢
GB/T 700 碳素结构钢
GB/T 985.1 气焊、焊条电弧焊、气体保护焊和高能束焊的推荐坡口
GB/T 1184-1996 形状和位置公差未注公差值
GB/T 1228 钢结构用高强度大六角头螺栓
GB/T 1591 低合金高强度结构钢
GB/T 1804-2000 一般公差未注公差的线性和角度尺寸的公差
GB/T 3632 钢结构用扭剪型高强度螺栓连接副
GB/T 9286 色漆和清漆漆膜的划格试验
GB 50017 钢结构设计规范
JB/T 5000.3-2007 重型机械通用技术条件 第3部分:焊接件
JB/T 5000.10 重型机械通用技术条件 第10部分:装配
JB/T 5000.12-2007 重型机械通用技术条件 第12部分:涂装
MT/T 154.1 煤矿机电产品型号编制方法 第1部分:导则
MT 236 矩形钢罐道滚轮罐耳
MT 237.3 多绳提升容器 B型钢丝绳悬挂装置 圆尾绳悬挂装置
MT 237.4 多绳提升容器B型钢丝绳悬挂装置扁尾绳悬挂装置
MT 684 矿用提升容器重要承载件无损探伤方法与验收规范
《煤矿安全规程》(国家安全生产监督管理总局、煤矿安全监察局)
3 产品分类
3.1 型式
3.1.1 首绳悬挂装置与平衡锤用销轴直接连接,连接孔中心距按多绳摩擦式提升机钢丝绳间距确定。 首绳悬挂装置超过平衡锤断面宽度尺寸时应倾斜布置。
3.1.2 尾绳悬挂装置采用MT 237.3、MT 237.4规定的圆尾绳和扁尾绳两种。
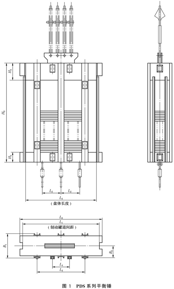
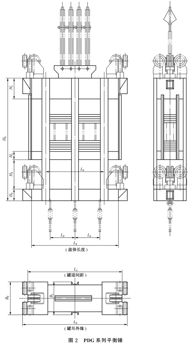
3.1.3 平衡锤有绳罐道和矩形钢罐道两种形式。
使用绳罐道的平衡锤,罐道绳布置在平衡锤的一侧,采用套筒式滑动绳罐耳导向(见图1)。

使用矩形钢罐道的平衡锤,矩形钢罐道布置在平衡锤的两端,采用MT 236规定的滚轮罐耳沿矩形 钢罐道导向(见图2)。

3.1.4 平衡锤采用型钢立柱。立柱与各盘体、盘体主要受力杆件之间采用GB/T 1228、GB/T 3632规定的高强螺栓或GB/T 27规定的较制孔用螺栓联接。
3.1.5 平衡锤过卷时,采用上、下盘制动。制动罐耳均设置在平衡锤的两端。
3.1.6 重锤块为铸铁块。
3.2 分类
平衡锤按运行罐道形式、质量范围及断面尺寸分为5个质量系列,14个品种(见表1)。
表1 基本参数
平衡锤 型号 | 断面尺寸 mmXmm | 平衡锤 质量范围 kg | 提升钢丝绳 | 尾绳 | 矩形钢 罐道宽度 mm | ||
首绳悬挂板允许 最大使用载荷 kN | 数量 根 | 尾绳形式 与间距 | 数量 根 | ||||
PDS-8A | 2 500X 780 | 6 000~8 000 | 350 | 4 | 与配套的 罐笼匹配 | 2或3 | 一 |
PDG-8A | 180 | ||||||
PDS-14A | 8 000〜14 000 | 560 | —— | ||||
PDS-14B | 2 500X 910 | ||||||
PDG-14A | 2500X780 | 180 | |||||
PDG14B | 2 500X 910 | ||||||
PDS-20A | 2500X780 | 14 000~20 000 | 660 | 4或6 | —— | ||
PDS-20B | 2 500X 910 | ||||||
PDG-20A | 2500X780 | 180 | |||||
PDG-20B | 2 500X 910 | ||||||
PDG-30B | 2 500X 910 | 20 000~30 000 | 770 | 180 或 200 | |||
PDG-30C | 2800X1200 | ||||||
PDG-40B | 2 500X 910 | 30 000〜40 000 | 940 | ||||
PDG-40C | 2800X1200 | ||||||
3.3 产品型号
3.3.1 平衡锤的型号编制方法应符合MT/T 154.1的规定。
3.3.2 产品型号的组成和排列方式如下:

示例:
运行罐道为绳罐道、名义质量14 t、断面尺寸(2 500 mmX 780 mm)为A型的立井多绳平衡锤,其型号为:
3.4 基本参数与主要尺寸
3.4.1 平衡锤的基本参数应符合表1的规定。
以上为标准部分内容,如需看标准全文,请到相关授权网站购买标准正版。
- 2023-08-22欧宝网页版登录入口维修保养记录
- 2023-08-22欧宝网页版登录入口设施维修维护
- 2023-08-19欧宝网页版登录入口水池维修
- 2023-08-19欧宝网页版登录入口水炮维修
- 2023-08-19欧宝网页版登录入口线路维修
- 2023-08-19欧宝网页版登录入口维保服务系统
- 2023-08-19欧宝网页版登录入口主机维修维保大全
- 2023-08-19欧宝网页版登录入口维保作用
- 2023-08-18欧宝网页版登录入口维保工作联系单
- 2023-08-18欧宝网页版登录入口维保每年都要做吗
- 2023-08-18 欧宝网页版登录入口维保技术服务
- 2023-08-18欧宝网页版登录入口主板维修
- 2023-08-18欧宝网页版登录入口维保软件
- 2023-08-18欧宝网页版登录入口维保规章制度
- 2023-08-17欧宝网页版登录入口检测和维保
- 2023-08-17欧宝网页版登录入口维保检查
-
IG541混合气体灭火系统
IG541混合气体灭火系统:IG-541灭火系统采用的IG-541混合气体灭火剂是由大气层中的氮气(N2)、氩气(Ar)和二氧化碳(CO2)三种气体分别以52%、40%、8%的比例混合而成的一种灭火剂 -
二氧化碳气体灭火系统
二氧化碳气体灭火系统:二氧化碳气体灭火系统由瓶架、灭火剂瓶组、泄漏检测装置、容器阀、金属软管、单向阀(灭火剂管)、集流管、安全泄漏装置、选择阀、信号反馈装置、灭火剂输送管、喷嘴、驱动气体瓶组、电磁驱动 -
七氟丙烷灭火系统
七氟丙烷(HFC—227ea)灭火系统是一种高效能的灭火设备,其灭火剂HFC—ea是一种无色、无味、低毒性、绝缘性好、无二次污染的气体,对大气臭氧层的耗损潜能值(ODP)为零,是卤代烷1211、130 -
手提式干粉灭火器
手提式干粉灭火器适灭火时,可手提或肩扛灭火器快速奔赴火场,在距燃烧处5米左右,放下灭火器。如在室外,应选择在上风方向喷射。使用的干粉灭火器若是外挂式储压式的,操作者应一手紧握喷枪、另一手提起储气瓶上的


