GB 10395.7-2006 农林拖拉机和机械 安全技术要求 第7部分:联合收割机、饲料和棉花收获机
- 发表时间:2023-01-27
- 来源:共立欧宝网页版登录入口
- 人气:
1 范围
本部分规定了保证操作者及其他作业人员在自走式联合收割机、自走式饲料和棉花收获机正常运转、保养维修和使用过程中安全的技术要求。
本部分是GB10395.1的补充。本部分还给出了使用自走式联合收割机、自走式饲料和棉花收获机时,防止发生意外事故的指南。
2 规范性引用文件
下列文件中的条款通过GB 10395的本部分的引用而成为本部分的条款。凡是注日期的引用文件,其随后所有的修改单(不包括勘误的内容)或修订版均不适用于本部分,然而,鼓励根据本部分达成协议的各方研究是否可使用这些文件的最新版本。凡是不注日期的引用文件,其最新版本适用于本部分。
GB/T 4269.1 农林拖拉机和机械、草坪和园艺动力机械 操作者操纵机构和其他显示装置用符第1部分:通用符号(idt ISO 3767-1:1991)
GB/T 4269.2 农林拖拉机和机械、草坪和园艺动力机械 操作者操纵机构和其他显示装置用符第2部分:农用拖拉机和机械用符号(idt ISO 3767-2:1991)
GB/T 6979.1 收获机械 联合收割机和功能部件 第1部分:词汇(ISO 6689-1:1997,MOD)GB/T 10394.1 饲料收获机 第1部分:术语(idt ISO 8909-1:1994)
GB 10395.1-2001 农林拖拉机和机械 安全技术要求 第1部分:总则(eqv ISO 4254-1:1989)|
3 术语和定义
GB/T 6979.1和GB/T 10394.1确立的术语和定义适用于本部分。
4 技术要求
4.1 操作者工作位置
4.1.1 内部空间尺寸
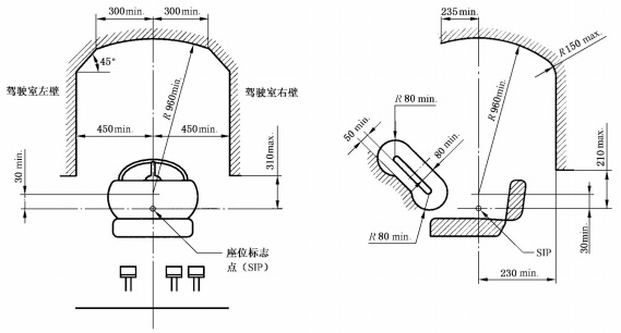
驾驶室内部最小空间尺寸应符合图1规定。图1中尺寸为座位处于最高和中间水平位置、悬架处于中间位置时的尺寸。
4.1.2 座位尺寸和布置
座位位置应舒适、可调,座位尺寸应符合图2规定。
对轮(轨)距大于1150mm的机器,座位位置的调整应不使用工具手动进行,垂直方向的最小调整量为±30mm、水平(纵向)方向的最小调整量为±50mm,推荐应达到的最大可调整量为±75mm。垂直方向调整和水平方向调整应能独立进行。
4.1.3 方向盘
方向盘轴线最好位于座位纵向中心线上,任何情况下偏置量均应不大于50mm。
固定部件和方向盘之间的间隙应符合图1规定。
单位为毫米

图1 驾驶室最小内部空间尺寸
单位为毫米

图2 操作者座位装置尺寸
4.1.4 操作者操纵装置
操作者操纵装置和它们的位置应用符合GB/T 4269.1和GB/T 4269.2规定的清晰耐久符号标出,或用适合操作者的文种描述。
操纵力大于等于50N的操纵装置周围应有最小50mm的间隙。
操纵力小于50N的操纵装置周围应有最小25mm的间隙。指尖操纵的操纵装置,只要不存在误操纵相邻操纵装置的危险,则无上述间隙要求。
4.1.5 剪切与挤压部位
操作者坐在座位上,手或脚触及范围内不应有剪切或挤压部位。如果座位后部相邻部件具有光滑的表面、座位靠背各面交界无棱边,则认为座位靠背和其后部相邻部件间不存在危险部位。
4.1.6 进入操作者工作位置的门道
驾驶室门道尺寸应符合图3规定。图3中尺寸与下列尺寸有关:
a)门框和门在打开时,均应满足的门道最小尺寸;
b)操作者站立平台离地高度大于550mm和相应门槛离地高度大于650mm时,应设置的附加门道梯子的尺寸。
进入操作者座位的通道应畅通(宽度最小为250mm),操纵装置不应介入,以保证操作者脚踏实地放置。该要求适用于操纵装置处于任何位置,操作者持续操纵装置除外。
单位为毫米

a——对于无门道梯子直接进入的驾驶室,门道总高度1350mm/min可以减至1300 mm/min,宽度550 mm/min可以减至450mm/min。
b——450mm为推荐值。
图3 主门和门道设施的尺寸
凸起部件、操纵装置、梯子或手柄缠绕或夹持操作者或操作者衣服造成的意外阻塞情况,应降低到最小程度。
无驾驶室的半喂入联合收割机应至少设置一块足够大的后视镜;其他机器应至少设置两块足够大的后视镜,每侧一个,以保证行驶安全。若操作者在驾驶操作位置看不到机器后方,则应装倒车声响装置。
驾驶室应设置保持门开启的装置。密封式驾驶室应设置配适当过滤器的风扇通风装置。
4.1.7 驾驶室紧急出口
驾驶室至少应有两个在不同面上的紧急出口(前面、后面和顶面都可为设紧急出口的面)。紧急出口在驾驶室内不使用工具应容易打开。
紧急出口横截面应至少能包容一个长轴为640mm、短轴为440mm的椭圆。
4.1.8 进入操作者平台/座位的梯子
4.1.8.1 梯子除符合GB 10395.1-2001中10.1的要求外,还应满足下列要求:
a) 梯子的结构应防止形成泥土层。
b) 在特殊情况下(水稻收割机、履带行走轮或倾斜补偿机构),最低一级梯子踏板表面离地高度可以为700mm。
c)梯子倾斜度推荐为:当从梯子上下来时向下看可看到下一级梯子踏板外缘。
d)梯子向上或向下移动时,不应造成挤压或冲击操作者或在场者的现象。
4.1.8.2 门道梯子两侧应设置扶手或扶栏,以使操作者与机器始终保持三处接触。扶手/扶栏的横截面尺寸应在25mm~35mm之间。扶手/扶栏较低端离地高度应不大于1600mm,扶手/扶栏后侧应具有最小50mm的放手间隙。距梯子最高一级踏板高1000mm处应设抓手。扶栏长度至少为150mm。
4.2 其他类型的梯子和平台
4.2.1 进入维修和保养区的梯子和通道应符合4.1.8规定的要求。在特殊情况下(受高度限制),扶手或扶栏高度可小于1000mm,但不应小于650mm。
维修平台上应设高度为1000mm的防护栏,以防止工作人员从机器上跌落,在特殊情况下(受高度限制),防护栏/扶栏高度可小于1000mm,但不应小于650mm。
4.2.2 机器应设置适当扶栏的地方,不应把梯型踏板作为扶栏。
4.3 割台、喂入螺旋输送器和拨禾轮
使用说明书中和机器的相关位置上,均应提醒操作者,在收割装置和/或切割装置(如:割台、拨禾轮、切割器、捡拾器、螺旋剥离器等)位置处会出现与其功能相关的剪切现象。
拨禾轮的最外缘和相邻固定部件之间应有25mm的间隙。
割台传动系分离机构应具有防止意外接合的结构。
建议设置输送器反转机构。
4.4 粮箱和粮箱螺旋输送器
4.4.1 粮箱
使用说明书中和机器上,应分别给出适当的安全标志,指出在机器运转时不得进入粮箱。
粮箱结构应使谷物断流的情况降低到最小程度。
根据安全需要,在粮箱外面设置安全检查用的阶梯和扶栏。
根据安全需要,在机器上配备安全取样装置。
4.4.2 粮箱分配螺旋输送器和卸粮螺旋输送器
所有螺旋输送器都应配置防护装置,防止与其意外接触。粮箱盖不应作为安全装置,除非粮箱盖打开时,由连锁装置使螺旋输送器停止运转。
如果螺旋输送器设有符合下列规定的挡板也可以认为满足防护要求:
a) 挡板能防止机器操纵位置或其他站立位置上的操作者,意外地接触螺旋输送器(安全距离见GB 10395.1);
b) 挡板固定牢固,如果挡板能推开或摆转,在机器运行期间应牢固固定在防护位置上;
以上为标准部分内容,如需看标准全文,请到相关授权网站购买标准正版。
- 2023-08-22欧宝网页版登录入口维修保养记录
- 2023-08-22欧宝网页版登录入口设施维修维护
- 2023-08-19欧宝网页版登录入口水池维修
- 2023-08-19欧宝网页版登录入口水炮维修
- 2023-08-19欧宝网页版登录入口线路维修
- 2023-08-19欧宝网页版登录入口维保服务系统
- 2023-08-19欧宝网页版登录入口主机维修维保大全
- 2023-08-19欧宝网页版登录入口维保作用
- 2023-08-18欧宝网页版登录入口维保工作联系单
- 2023-08-18欧宝网页版登录入口维保每年都要做吗
- 2023-08-18 欧宝网页版登录入口维保技术服务
- 2023-08-18欧宝网页版登录入口主板维修
- 2023-08-18欧宝网页版登录入口维保软件
- 2023-08-18欧宝网页版登录入口维保规章制度
- 2023-08-17欧宝网页版登录入口检测和维保
- 2023-08-17欧宝网页版登录入口维保检查
-
IG541混合气体灭火系统
IG541混合气体灭火系统:IG-541灭火系统采用的IG-541混合气体灭火剂是由大气层中的氮气(N2)、氩气(Ar)和二氧化碳(CO2)三种气体分别以52%、40%、8%的比例混合而成的一种灭火剂 -
二氧化碳气体灭火系统
二氧化碳气体灭火系统:二氧化碳气体灭火系统由瓶架、灭火剂瓶组、泄漏检测装置、容器阀、金属软管、单向阀(灭火剂管)、集流管、安全泄漏装置、选择阀、信号反馈装置、灭火剂输送管、喷嘴、驱动气体瓶组、电磁驱动 -
七氟丙烷灭火系统
七氟丙烷(HFC—227ea)灭火系统是一种高效能的灭火设备,其灭火剂HFC—ea是一种无色、无味、低毒性、绝缘性好、无二次污染的气体,对大气臭氧层的耗损潜能值(ODP)为零,是卤代烷1211、130 -
手提式干粉灭火器
手提式干粉灭火器适灭火时,可手提或肩扛灭火器快速奔赴火场,在距燃烧处5米左右,放下灭火器。如在室外,应选择在上风方向喷射。使用的干粉灭火器若是外挂式储压式的,操作者应一手紧握喷枪、另一手提起储气瓶上的


