GB/T 24818.5-2009 起重机 通道及安全防护设施 第5部分:桥式和门式起重机
- 发表时间:2023-01-27
- 来源:共立欧宝网页版登录入口
- 人气:
1 范围
GB/T 24818的本部分规定了由GB/T6974.1定义的桥式和门式起重机在通道及安全防护设施上的特殊要求,并给出了桥式和门式起重机在各种预期使用条件下相关设备的选用标准。
2 规范性引用文件
下列文件中的条款通过GB/T 24818的本部分的引用而成为本部分的条款。凡是注日期的引用文件,其随后所有的修改单(不包括勘误的内容)或修订版均不适用于本部分,然而,鼓励根据本部分达成协议的各方研究是否可使用这些文件的最新版本。凡是不注日期的引用文件,其最新版本适用于本部分。
GB 5226.2 机械安全 机械电气设备 第32部分:起重机械技术条件(GB 5226.2-2002,IEC 60204-32:1998,IDT)
GB/T 6974.1 起重机 术语 第1部分:通用术语(GB/T 6974.1-2008,ISO 4306-1:2007,IDT)
GB/T 24818.1-2009 起重机 通道及安全防护设施 第1部分:总则(ISO 11660-1:2008,IDT)
3 通道
3.1 总则
本条是对通往安装在高架或地面轨道上的桥式和门式起重机的工作通道,以及对这一类型起重机日常和紧急维护、修理的通道要求。
3.2 厂房内或高架轨道上的桥式起重
3.2.1 通往起重机的通道平台
在司机室内操纵的桥式和门式起重机应将供司机出入的通道平台固定在起重机的支承结构上。表1给出的推荐的通道形式,应符合GB/T 24818.1--2009中的表6给出的通道形式和尺寸。
表1 推荐的通道形式
通道距地面高度/m | 推荐的通道形式 |
1~15 | 楼梯 斜梯 直梯 |
15~25 | 楼梯 |
>25 | 电动通道 楼梯 |
3.2.2 通道平台
通往起重机的正常通道应从通道平台进出。通道出入口应采用以下自行关闭装置加以保护,如:-内开式板门或栅栏门;
——上下或左右推拉门;
——垂直铰接护栏。
通道平台与相应的起重机平台的高低差应在10mm之内,或搭接成高度在180mm~250mm范围内的台阶。
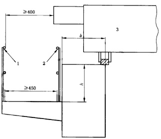
通道平台与相应的起重机平台的间隙应符合图1的要求。如果不能满足这些要求,则应设置消除可能出现剪切、挤压和坠落危险的其他装置,如:联锁装置。
1——起重机运行方向;
2——起重机平台;
3——固定通道。
a——b1或b2。
a 剪切状态:
50mm≤a,≤100mm;
400mm≤b,≤500mm。
b 挤压状态:
150mm≤a2≤250mm;
200mm≤b2≤300mm。
c 剪切和挤压状态(搭接状态):
a3≤150mm;
c1≥150mm;
|d|<10mm(无搭接),或180mm≤|d|≤250mm(有搭接)。
图1 通道平台间隙
3.2.3 起重机上的备用通道
3.2.3.1 总则
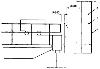
司机或维护人员进入司机室的通道可以设置在起重机结构上。按照GB/T 24818.1-2009的要求,桥架上的任何高架走道或平台、小车或大车上的走道均应在其所有的暴露面设置栏杆和围护板(参见图2和图3)。在现有厂房内无法达到这些要求的情况下,则应设置备用安全装置以便安全出入。
在无法采用楼梯或斜梯的场合,通往起重机桥架和小车的通道可以采用直梯。
单位为毫米

1——栏杆A;
2——栏杆B;
3——小车。
注:如果h+b≥1.25m或h≥0.70m,则可以不设栏杆B.
图2 桥架主梁上工作走道的防护状态
单位为毫米

1——栏杆A;
2——栏杆B;
3——立柱;
4——墙壁。
注1:如果a≥600mm,则栏杆A可以不设;如果a≥1000mm,则栏杆B可以不设或只设栏杆A。
注2:护栏距电气部件的距离大于等于100mm并小于500mm时,为解决安全问题,固定平台护栏应设置两根中间横杆以防止双脚踏入危险区域。此外,为避免发生挤压危险,可将护栏高度分为三阶,以便在护栏未设开口处能向起重机方向翻越。
图3 厂房上的工作走道 防护状态
以上为标准部分内容,如需看标准全文,请到相关授权网站购买标准正版。
- 2023-08-22欧宝网页版登录入口维修保养记录
- 2023-08-22欧宝网页版登录入口设施维修维护
- 2023-08-19欧宝网页版登录入口水池维修
- 2023-08-19欧宝网页版登录入口水炮维修
- 2023-08-19欧宝网页版登录入口线路维修
- 2023-08-19欧宝网页版登录入口维保服务系统
- 2023-08-19欧宝网页版登录入口主机维修维保大全
- 2023-08-19欧宝网页版登录入口维保作用
- 2023-08-18欧宝网页版登录入口维保工作联系单
- 2023-08-18欧宝网页版登录入口维保每年都要做吗
- 2023-08-18 欧宝网页版登录入口维保技术服务
- 2023-08-18欧宝网页版登录入口主板维修
- 2023-08-18欧宝网页版登录入口维保软件
- 2023-08-18欧宝网页版登录入口维保规章制度
- 2023-08-17欧宝网页版登录入口检测和维保
- 2023-08-17欧宝网页版登录入口维保检查
-
IG541混合气体灭火系统
IG541混合气体灭火系统:IG-541灭火系统采用的IG-541混合气体灭火剂是由大气层中的氮气(N2)、氩气(Ar)和二氧化碳(CO2)三种气体分别以52%、40%、8%的比例混合而成的一种灭火剂 -
二氧化碳气体灭火系统
二氧化碳气体灭火系统:二氧化碳气体灭火系统由瓶架、灭火剂瓶组、泄漏检测装置、容器阀、金属软管、单向阀(灭火剂管)、集流管、安全泄漏装置、选择阀、信号反馈装置、灭火剂输送管、喷嘴、驱动气体瓶组、电磁驱动 -
七氟丙烷灭火系统
七氟丙烷(HFC—227ea)灭火系统是一种高效能的灭火设备,其灭火剂HFC—ea是一种无色、无味、低毒性、绝缘性好、无二次污染的气体,对大气臭氧层的耗损潜能值(ODP)为零,是卤代烷1211、130 -
手提式干粉灭火器
手提式干粉灭火器适灭火时,可手提或肩扛灭火器快速奔赴火场,在距燃烧处5米左右,放下灭火器。如在室外,应选择在上风方向喷射。使用的干粉灭火器若是外挂式储压式的,操作者应一手紧握喷枪、另一手提起储气瓶上的


